关于卧室的装修布置,可能不少的人都听说过“床头不能朝西”的说法,说这样风水不好。个人觉得,这个“风水观”其实是没有科学依据的迷信,有人根据磁场等解释,然而遇到实际户型情况的时候,有些棘手的设计问题恐怕比这磁场问题要严重得多。比如在我们之前的推文《住得憋屈,还谈什么风水?》里面介绍过一个户型,如下图:

根据“床头不能朝西”的观点这个卧室的床就只能是“房门对床头或床头靠窗”了,比起床头朝西,哪个会让你感觉不舒服呢?关于床头朝向的问题,其实真心没必要执着迷信!古代帝王风水那么好,也不见得哪个是千秋万代的啊。

关于床头布置,下面几个原则可以参考:
根据居住者的心理感受出发,下面几个是比较直观需要注意的问题。
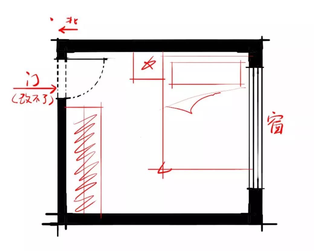
①床头离房门最远的位置,比较安静舒适;
②要靠墙,床头空空的话怕踏空,没安全感;
③避开床头对镜子,怕半夜醒来自己吓自己;
④避开生活动线,避免日常生活不便利。
⑤当被户型限制,无法完全避开以上问题的时候,则是根据自己哪个比较容易接受的方案来做了。
下面是一些卧室床头布置的设计参考与建议,各位可以借鉴下!




▲户型条件允许的话,像上图这样靠墙的床最实在了,至于朝西朝北什么的,就别理会了!难不成把床转过来靠窗还是堵住房门通道啊?




▲从卧室门进来到卧室最里侧的位置,这是生活动线来的,所以床的布置一般不能堵着这个通道,要留出通道位置,作为生活动线。

▲床两侧都做衣柜的户型,那么床就居中布置在两个衣柜中间,这样收纳空间更加丰富实用。


▲床离门远其实是很简单的道理,如果床靠近房门就容易堵着,腾不出活动空间了。

▲有门垛的卧室,或则床头对着主人卫生间门的,也可以砌个门垛,然后床就靠比较宽的门垛一侧,留出动线通道的同时又避免门对床头致使不适感。

▲对于狭长的卧室,如果床摆下后就影响进入里侧空间的话,可以参考上图这样利用,把床摆在最里侧位置。

▲如果像这样L型的飘窗的话,床头尽量避免架空,会感觉没安全感。

▲侧边有飘窗的,刚刚留个通道就行了。



▲床头有窗户的话,刚好避开窗户的布置,实在没办法,床头高度的位置也建议是实体墙,避免落地窗。


▲如果卧室有阳台的话,保持靠阳台一侧位置的宽松为主。

▲矮墙床头背景墙,适合卧室较大或则多面临窗,床无法靠在墙的卧室。
关于卧室床的布置,文章已经提供了很多参考意见与方案了,相信各位基本都找到适合自家的设计或灵感了吧!
买了房找装修灵感,欢迎加微信公众号:shejiguan_cn