

工作中,我们经常会遇到户型优化、室内平面布局的设计,当我们拿到一个只有墙的户型图时,如何快速的将全屋布局好呢?

答案当然是用室内空间布局模块啦!那这个空间模块化设计到底是什么呢,全屋又有哪几个空间可以利用模块快速的设计好呢?今天我们就一起来看看这些问题的答案!



文末附 精选500款室内空间布局模块CAD图库
01
模块化设计

空间模块化设计是指综合功能、人体、工业化模数对各项家具、空间尺寸进行细致研究,提炼出的平面标准功能模块。最早的概念是来源于西班牙的家具设计,后来延伸到设计界的各个领域。

在室内设计领域,空间模块化设计在一定程度上,能根据空间功能分析弥补户型上的短板,结合工业化模数减少一定的材料损耗等。
在设计过程中,运用模块还能快速完成平面布局,达到事半功倍的效果。

02
住宅空间的五大功能模块

大部分住宅应满足起居、饮食、洗漱、学习、娱乐及收纳等功能需求,根据不同的功能空间,我们将住宅分为卧室、客厅、餐厅、厨房、卫生间等五大功能空间。
每个空间都有不同的功能,其大小和布局也有很大的差异,那么在布局不同空间的时候,我们应该注意哪些地方呢?

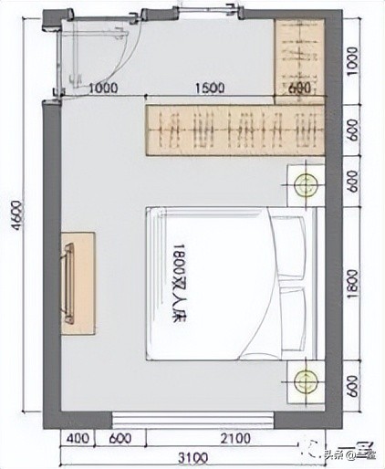
第一要说的就是卧室,卧室对于居住者来说是十分重要的!人的一生约有三分之一的时间是在睡眠状态中度过的,打造舒适的卧室空间,首先布局就得合理。






▲ 不同形式的卧室最小尺寸要求
卧室布局中,应该先定好床的摆放位置,在床周围要确保一定的走动的空间。根据空间大小不同,卧室衣柜也有不同的设置方式,但也一定要考虑好柜门开关方式和通道的关系,避免后期出现柜门无法打开的问题。


第二个来说说客厅,客厅无疑是家庭中非常重要的一个场所,无论是日常休闲还是待客几乎都是在此处,所以客厅的布局方式也很重要。

现在越来越多的人选择在客厅中不放置茶几,留出更多的互动空间,也有人选择传统的沙发,茶几,电视三件套,无论选择哪种方式,都要注意动静分区、不同家具之间的距离。

最后厨房、餐厅、卫生间这3个空间的设计也是非常重要的一部分,尤其是厨房,不管是I型、II型、L型还是U型的厨房,按照做菜顺序来布置,绝对是最佳的选择。当然布局合理还不够,按照频繁使用者的身高条件,选择合适高度的橱柜,让厨房生活变得更加舒适轻松。


当然以上三个空间的设计要点还有很多,餐厅和卫生间的布局设计也应当认真考虑,在这里就不一 一说明了。
有了布局的模块CAD,可以减少很多反复考虑的时间,在设计初期,我们就可以根据需要设计的各空间尺寸去选择合适尺寸的布局模块直接置入户型图中,快捷方便,无需再去一点点布局家具、设施。

看到这里,相信你心中已经对前面提出的问题有了答案。这里小编为你准备500款室内空间布局模块CAD图库,快点一起用起来吧,远离加班不是梦。
精选500款室内空间布局模块CAD图库
部分内容展示










▲以上仅为部分展示
【免费领取】私信回复“008”
版权声明:我们尊重原创。文字美图素材,版权属于原作者。部分文章推送时因种种原因未能与原作者联系上,若涉及版权问题,敬请原作者联系我们,立即处理。