▲点击“室内设计苑”关注我!每天更新,喜欢的可以点赞关注转发哦!
滑到文章底部有彩蛋哦
今天小编为大家分享的是CAD全套动态图库。是设计师不可多得的优质资源,也是我在网上收集整理出来的,对自己帮助挺大的,现在免费把自己的资料分享给有需要的小伙伴,无偿分享,希望对大家有所帮助。
本期福利:CAD全套动态图库
【彩蛋在文章最后】 不要错过!!!
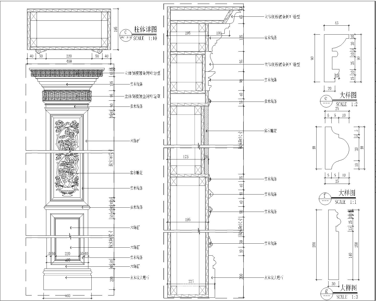
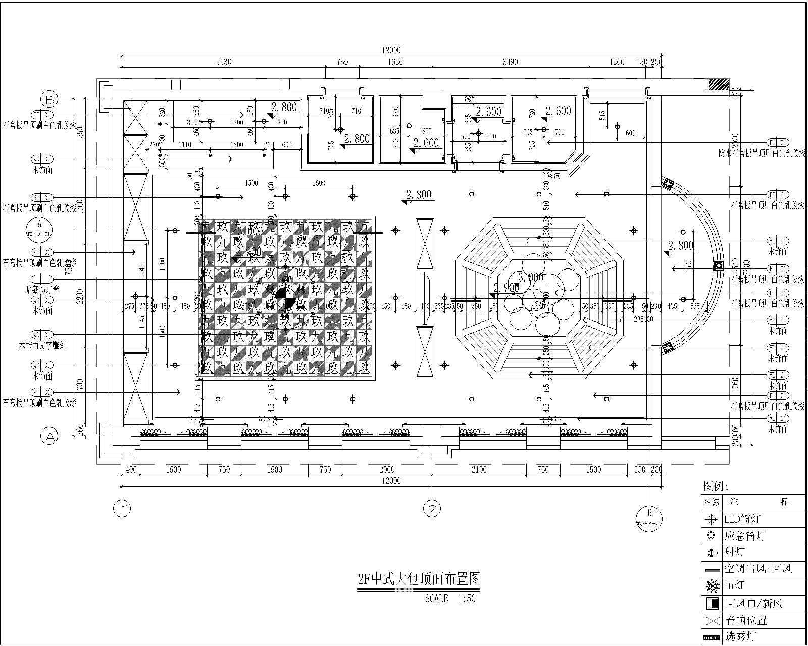
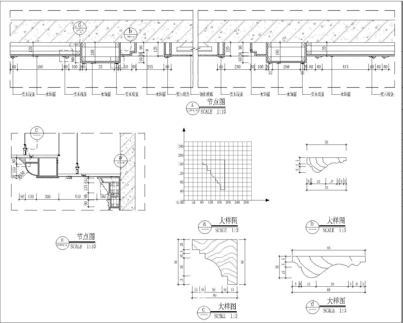
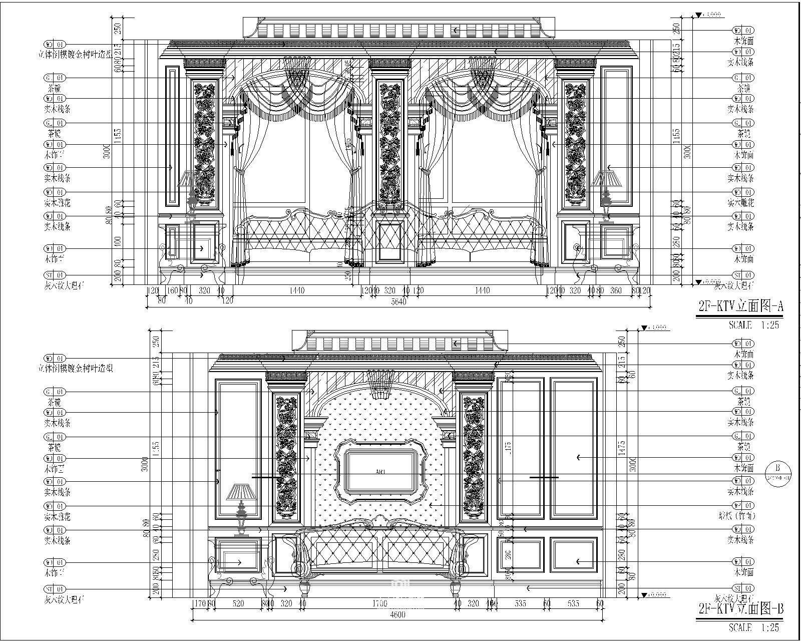
下面是部分预览图,分享给各位学习参考,数量有点多,建议收藏*载下**。

























资料领取方式如下↓↓↓

好了,今天的CAD全套动态图库分享到这里就结束了,觉得有用的小伙伴不妨转发收藏点个赞~
整理不易,谢谢支持~
欢迎各位小伙伴们前来白嫖~~(不断更新中)努力做一名最真实的分享者!
