庭院建筑,是千百年来中国建筑的主要表现形式,承载了中国人的思想观念和审美情趣。在中国传统的居住观念中,庭院有着特殊的意义,它不仅仅是一个家,更是家族繁荣、子孙兴旺的象征。
庭院并不在乎把院子做大,而更愿将院子分散,或大或小,或左或右,与每个功能空间能发生联系,让每个功能空间更有弹性。下面这个户型设有前庭后院,2面甚至3面与院子发生关系,超大采光与观景尺度,感悟自然与生活的融合。

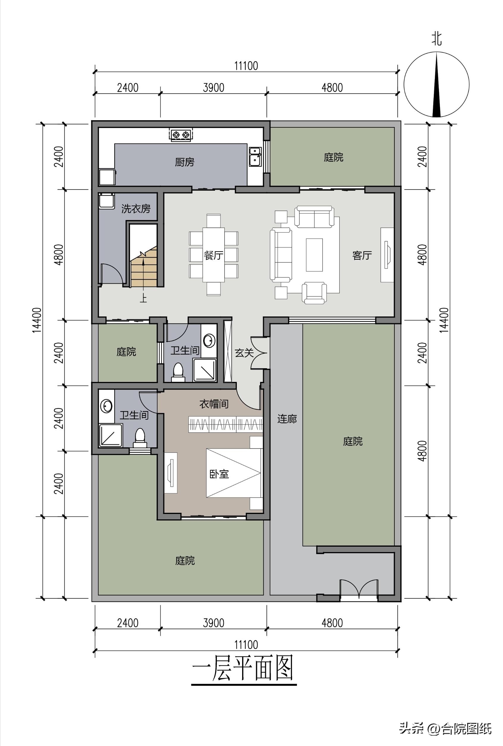
户型基本信息
占地尺寸:11.10m×14.40m(主体)
占地面积:125.70㎡(主体)
建筑面积:279.99㎡
建筑高度:10.2m
建筑结构:砖混结构

平面布局:
独门入户、开门有院,自成一派的入户设计,既是私密清净的归家仪仗,也为家庭提供归家的尊贵体验。平面布局以院落为生活空间的圆心,全房间朝院子。分散式的庭院,使得庭院与功能空间融合互动,最大化利用景观资源,一年四季盛景,生活进退有度,让小小的庭院收获生活从容。

一层:
前庭入户,向往“自立门户”的清净,分户入室是最好的礼遇,疏朗的景观迎接归途。后庭的设计让庭院与房间直接相连,形成自然过渡的室外空间,增加了自然与人的交流机会。 首层前中后三重庭院;首层老人房,减少老人家上下楼梯的安全隐患。

客餐厅一体设计,采用大横厅布置手法,面宽达到8.7米,二者之间*界无**相连,欢乐无缝传递,视界更为宽阔。客餐厅开间敞阔明朗,南北向连通庭院,大面积落地观景窗最大化将风景与室内空间进行融合,引入院落处处芳菲。居者既可游于天地,又能享幽静私密的生活。
厨餐客厅全明设计,功能依次排列,整体空间科学、流畅,通风采光极佳。
二层:
二层精细化的空间设计,在小面积中遵循均衡、比例、节奏、尺度的平衡,经济型小合院也能拥有舒适尺度的卧寝空间。套间卧室,自在生活互不干扰;南北更是有观景露台。山水丽景一览无余,主次卧之间私密有保障。

三层:
南北卧室,均为套间配置,合理错位,L型采光面宽设计,有效提升户型采光面与通风面,提升居住舒适性与景观享受性。
一个整合了多功能的主卧套房,满足主人对格调生活的向往,独立卫生间、步入式衣帽间,定制私密空间,南向阳台将室外景色引入卧室,阳光、清风肆意入怀,每一个不想起床的早晨,都让自然来唤醒。

居高观景,享受绝佳视野,三楼奢阔露台,正是绝妙去处。月光正好,品茗对弈岂不妙哉!倦了,慢悠悠踱回卧室,安然入睡,生活从来都是如此优雅。
中国院居文化表现出中国人对舒适居住的理解,是一种属于中国人的美学。我们的美学造诣在于归景造物,含蓄的画面表达深远的意境。风景如画,是身在一处的心境总结,身在此山,是品尝时间精炼的岁月。我们所设计的是一种生活方式,一种所适合的时段称为皆可随时。