一辆行驶里程约12.2万km、配置N20发动机的2013年宝马3系GT轿车。客户反映:该车中央显示屏显示大灯光线高度调整失效,如图1所示。

故障诊断:接车后试车,打开点火开关,大灯开关拨到“A”挡(自动挡),发现右侧近光灯要比左侧近光灯慢几秒才亮起来(如图2所示),打方向时右侧大灯不会随方向而转动。中央显示屏显示大灯光线高度调整失效。

使用宝马原厂诊断系统ISTA诊断,存有大灯光线水平调整以及LIN信号故障,如图3所示。

前部电子模块(FEM)是车载网络中的中央控制单元,同时前部电子模块(FEM)也是其他控制单元的网关。前部电子模块(FEM)承担了源自旧控制单元一脚部空间模块(FRM )、便捷进入及启动系统(CAS)、接线盒电子装置(JBE)和中央网关模块(ZGM)的功能。
大灯驱动模块除了灯光功能也控制大灯光线水平调整和随动控制大灯的步进电机。前部电子模块(FEM)将请求作为信息通过LIN总线输出。在LIN总线上,传输所有必需的信息,例如目标位置(水平和垂直)和摆动速度。
在摆动模块中,LED灯的两个反光镜可以通过步进电机调整。反光镜如下进行调整:
·水平:两个反光镜一起(为了自适应弯道照明灯向左和向右)
·垂直:仅外侧反光镜(为了自动大灯光线水平调整向上和向下)
步进电机受大灯驱动模块控制。脚部空间模块(FRM)通过LIN总线上的信息进行控制。
导致大灯工作异常的因素有:
·前部电子模块(FEM)
·大灯驱动模块(TMS )
·大灯内部线路
·灯光模块的版本
·线路
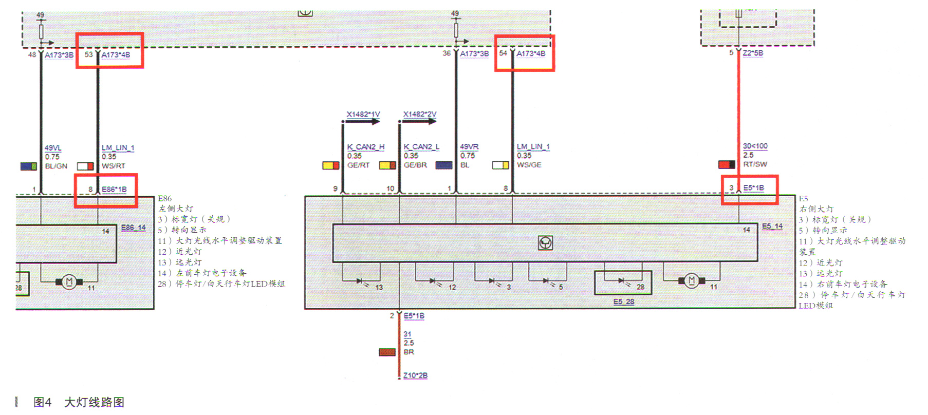
遵着“有简入难”“由外入内”的原则,怀疑FEM和TMS设码错误,尝试给FEM编程设码,故障依旧;给TMS设码,右侧TMS不能设码。使用ISTA走ABL进行新大灯驱动模块初始化设置和学习转向信号灯,右侧大灯初始化不成功。调取本车大灯线路图女口图4所示。

从线路图中得知,左右大灯各自有保险丝供电,灯光模块通过发出LIN信号给左、右前大灯。FEM模块识别左、右大灯是根据大灯壳上TMS模块的设码针脚,右侧TMS上会多一条接地线来识别右侧大灯,左侧大灯内TMS仅有一条接地线来识别左侧。FEM内部大灯LIN是互通的,插头A173*4B的53号针脚对应左侧大灯的LIN信号;插头A173*4B的54号针脚对应右侧大灯LIN信号。
使用ISTA测试ABL右侧大灯驱动模块,提示与右侧大灯模块不通信。根据ISTA检测计划步骤提示逐步检查FEM供电、搭铁线、FEM输出LIN信号,如图5所示。

根据ISTA诊断系统ABL提示检测FEM供电电压为12V,为正常;搭铁线与车身通,为正常;FEM侧控制大灯驱动模块输出的LIN总线信号正常,如图6所示。

确认了FEM模块供电、搭铁、输出正常。继续按照检测计划ABL检查大灯外观,未发现异常。检查大灯插头、针脚,未发现异常。检查右侧大灯的供电电压为12V,搭铁点未发现异常,右侧大灯的供电搭铁都正常。使用万用表测量E5*1B的8脚右前大灯LIN信号线电压约10V,正常,如图7所示。

继续执行ISTA检测计划,检测计划ABL提示更换右前大灯,如图8所示。

难道是右前大灯损坏?为了确定是TMS故障,还是大灯内部LED灯故障,或者是大灯壳子里其他部件损坏。对换左、右前大灯是最快捷的方式。将左侧大灯安装在右侧;开大灯,发现故障转移,故障现象变成“左侧”灯慢半拍亮起。使用ISTA诊断系统检测,读取故障,存有:左侧大灯水平调整故障。右侧大灯安装到左边,故障现象消失。由此得出结论,右侧大灯、TMS, LED灯都为正常。
既然FEM供电、搭铁、信号输出都为正常,大灯供电、搭铁、信号、大灯都正常的,为什么装在右侧的大灯就是会比装在左侧的大灯慢半拍亮起呢?
使用示波器测量右前大灯的LIN信号和左前大灯的LIN信号与FEM输出的LIN信号,进行波形对比发现右前大灯的LIN信号波形异常。图9所示。

测量FEM输出的LIN信号,A173*4B的针脚53(左前大灯LIN信号输出)和LINA173*4的针脚54(右前大灯LIN信号输出)都正常,为什么到了右前大灯插头处LIN的信号就不对了?怀疑FEM从A173*4B的针脚54到右前大灯插头E5的针脚8的LIN信号线线束故障。再次确认大灯供电电压、搭铁线无异常。使用万用表测量从A173*4B的针脚54到右前大灯E5的针脚8的LIN信号线的电子为2.631MΩ,如图10所示。

一根导线怎么有这么大的电阻呢?于是,拨开A173*4B针脚54到E5*1B针脚8之间LIN信号线(参考图4)检查线路。剥开线路发现线束绝缘层磨损,线束内部铜线严重氧化,如图11所示。

维修线束右侧大灯LIN信号线束,线束电阻为0.8Ω,LIN信号波形恢复正常。试车故障排除,交车。
故障排除:编程、维修右侧大灯LIN信号线。一周后回访客户,确认故障排除。
故障总结:线束氧化或磨损处于即将断裂状态,开大灯,大灯水平进行调整自检时,由于线路氧化电阻过大,FEM识别到信号传输不正常,车辆就记录了故障。使用万用表测量LIN信号电压约为10V,属于正常电压。但是使用示波器测量,就一目了然发现波形异常。
对车辆系统背景知识的理解是非常重要的。FEM融合了FRM, CAS,JBE, ZGM的功能。新款的宝马由FEM通过大灯壳体内部设码导线来识别左右大灯。即使左前大灯安装在右侧,FEM模块识别到的依然是左前大灯。虽然左前大灯本身是正常,但安装在右前部,由于右前部LIN线氧化,电阻增大,大灯传递给FEM的信号不正常,所以ISTA检测依然会报左前大灯故障。