不锈钢挂件

不锈钢挂架横剖


T型不锈钢挂件

铝合金挂件


通槽


背栓连接干挂石材幕墙施工工法
1 、特点
•1.1板材之间独立受力,独立安装,独立更换,节点做法灵活。
•1.2连接可靠,对石板的削弱较小,减少连接部位石材局部破坏使石材面板有较高的抗震能力。
•1.3可准确控制石材与锥形孔底的间距,确保幕墙的表面平整度。
•1.4工厂化施工程度高,板材上墙后调整工作量少。
2 、适用范围
适用于建筑高度不大于30m、非抗震设计或抗震设防烈度不大于7度的民用建筑石材幕墙工程施工。
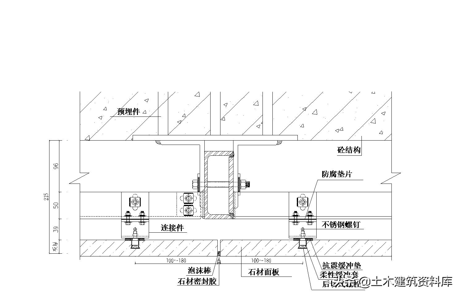
3 、工艺原理
通过双切面专用磨头在石材背部距板边100~180mm处磨出倒锥孔,倒锥孔与后切式锚栓采用尼龙体柔性结合,并将板面荷载通过骨架传递到主体结构。
4、工艺流程

节点图
背栓干挂石材幕墙横剖节点图

背栓干挂石材幕墙横剖节点图

背栓式

