近日,汇通路的新城铭著风华与万科紫辰光年均已开放售楼处示范区,笔者暴走城东汇通路三盘,获悉:
新城铭著风华与万科紫辰光年最快预计在本月底首开,铭著风华放风价34500元/㎡,紫辰光年放风价3万4-3万5/㎡!
君启售楼处主体已竣工,样板间等软装还在进行中,预计下周或下个月公开售楼处。
01
放风价3.4-3.5万/㎡!汇通路双子首开在即
新城铭著风华的售楼处定在仙鹤门“艺术盒子we”(奥克斯钟山府西面),可以看到,示范区的外观条件还是相当不错的,让人赏心悦目。



进门后是访客会谈区,整体呈现暖色调,遍布的书籍营造出浓郁的文化气息。

穿过访客会谈区,就是项目沙盘区了。根据规划,项目将打造11栋住宅17-18F、2栋商业,除了中央的5、6两栋楼是17层,其他楼栋均为18层,毛坯限价28500元/㎡。

据置业顾问透露, 铭著风华预计将于11月底首开2、3、7、10、11号楼,共385套房源,加上装修包放风价预计为34500元/㎡(以销许为准),目前正在申报物价审批!
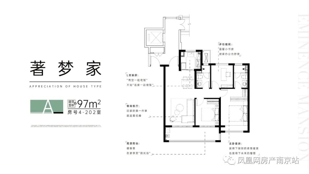
首开户型建筑面积约为97、115、125㎡,不会推出136㎡户型。本次115㎡户型较少,仅限3号楼的边户。

项目采用人车分流设计,在商业那一侧,还预留了不少地上停车位。除了南侧的入户大门之外,在东侧还有一个供行人出入的小门,那边距离汇通路地铁站更近一些,方便出行。


建筑方面采用公建化外立面,南向大面积采用玻璃窗, 南向窗墙比约0.42,颜值、采光两不误。

景观方面,项目打造全龄环氧配套共享的“森语+社区”,社区内部多景观节点打造,儿童活动区、青年活动区等全龄设计,其中 开心农场颇为独到,考虑到一些老人习惯自己种菜,在这一区域就得到满足。

目前, 项目仅开放了97、136㎡户型的样板间,装修标准目前尚未确定。
97㎡户型为难得的三房两厅两卫设计,进门有玄关柜,上方还有摄像头,实时监控室内景象;另有小度语音音箱,可以控制灯光、空调、窗帘等,不过仅限客厅,若是其他房间需要,则要另外购置设备。

户型采用U型厨房设计,四大件齐全: 灶台、油烟机、洗碗机、烘烤一体机 ;270°转角双阳台联通客厅与次卧,采光、通风效果都不错,全封闭交付,应消防需求,阳台会围上消防栏杆。

136㎡户型为四房两厅两卫设计, 270°转角双阳台开间高达 8米左右,非常奢阔,北边还有一个小阳台,空间感十足;厨房同样四大件齐全,还预留了双开门冰箱的位置。
客卫做到了干湿分离, 洗漱台与马桶采用杜拉维特或同等档次品牌,水龙头、花洒等五金产品采用高仪或同等档次品牌。
主卧与书房都有270°转角飘窗,观景、采光效果更好,同时还增加了空间感。
笔者出了样板间之后,原先比较安静的售楼处迎来了不少客人,据项目置业顾问表示, 工作日访客并不多,周末更多一些,一天大约有100组左右。
值得一提的是,目前万科紫辰光年的售楼处也已公开,就在原先的中海钟山印售楼处,样板间尚未开放。


据置业顾问透露, 项目放风价大概为3万4-3万5/㎡(具体以销许为准),预计与铭著风华差不多,首开时间也与铭著风华看齐……
02
君启售楼处预计下月公开,或明年入市!
不同于铭著风华和紫辰光年,君启的售楼处是自建的,地址就在汇通路附近。

笔者实探发现,项目售楼处从外表来看已经建得差不多了,两侧还预留了停车位的空间,整体格局看上去比较方正。



目前,售楼处已有一位工作人员入驻,据其透露, 售楼处目前尚未完工,还有好多材料要进场,样板间还在施工中,预计将于下个月开放。
其后,笔者跟置业顾问核实, 售楼处大概会在下周或下个月开放,届时户型图、样板间会一同开放。

笔者看了一下,品牌展示区其实已经差不多了,沙盘区也有布置了沙盘,用塑料纸遮挡着,估计很大一部分就是样板间在拖进度吧……

根据规划,项目拟建8栋17F住宅、3栋20F住宅和一栋3F商业。
君启预计一次性推出13栋楼,共500余套房源,主力户型面积约99㎡、117㎡和130㎡,还有部分底跃产品,项目毛坯房限价为27500元/㎡,加精装包预计价格在3.5万/㎡以内。
值得一提的是,笔者在探盘时,听其他项目的销售透露,君启今年应该不会入市了,要等到明年了。回来后,笔者咨询过君启置业顾问,得知: 项目想在12月首开,但也不确定,具体还要看资金情况……