顶层带露台的房子,还是蛮受欢迎的。每个人都希望拥有一个属于自己的露台,它可以是花园、可以是阳光餐厅,亦或者是其他。今天分享的案例,是一套顶层带阁楼和露台的房子,房屋坐落于上海,使用面积80㎡(含露台)。屋主也是热爱生活有品位的人,不希望装修太过繁杂,空间简洁明亮储物尽量最大化。装修围绕北欧风格展开,装修完工特别满意,露台改造成阳光餐厅和花园,简直太让人喜欢了,一起看看最终结果!(设计:设计师张茜)

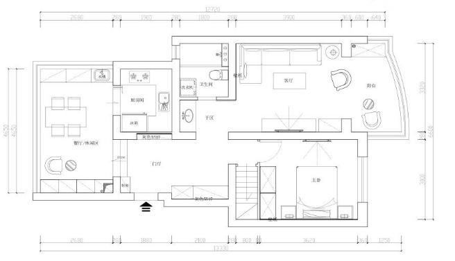
一层装修平面图,常住人口两人,因此将卧室设计在一层,13㎡的露台封闭,改造成阳光餐厅和花园。改变厨房进门方向,实现独立门厅。

阁楼保持了原有格局,设计了客房和储物空间。

改变厨房门方向之后,实现独立的门厅空间,也避免了开门就见厨房。壁画加上工艺装饰品,增添一些居家艺术气息。一个与墙垛齐平的储物柜,满足了玄关门厅的收纳。穿过玻璃门,就到达了露台空间。


综合考虑后将露台封闭,打造成阳光餐厅和花园,灵活的遮光帘满足了不同时间的运用。白天遮阳避免阳光直晒,夜晚打开又可以欣赏美丽的夜空。一边大快朵颐,一边欣赏美景简直太享受了。绿植的点缀增添绿意生机,休闲时又可以在角落喝喝茶,看看窗外风景,追求生活享受生活。

厨房门改到了露台一侧,不仅采光更好,生活动线也更合理一些。黑砖搭配白色烤漆橱柜,干净清爽、简洁大气。上下两排储物柜设计,发挥空间价值,提高厨房收纳能力。

门厅过道,木地板一直延伸到卧室,为了保证视觉统一,卧室门也选择了木色。过道设计了一处简易办公区,简易的桌椅搭配储物柜,隐藏灯带设计提供照明。


卫生间干湿分离非常到位,外置浴室柜提高日常使用便利,利用谷仓门做隔断,提高整体美感又节省空间。谷仓门带黑板墙值得借鉴,视觉感受不单调还可以涂鸦记录。

浴室柜外移卫浴空间得以释放,布置洗衣机和卫浴洁具刚刚好,玻璃门隔断保持了空间通透,又避免了淋浴水流。六边形瓷砖增添了几分几何感,让空间显得更有趣一些。

简约之美的客厅,简洁的线条勾勒出实用特质。灰白木的软装巧妙融合,一把绿色单椅成为点睛之笔。阳台纳入客厅,改善采光提高使用空间。一面储物柜设计,提高居家收纳能力。另一侧布置绿植和休闲椅。

电视墙直接地板上墙,与地板彼此相呼应。结构因素拉低了电视墙,隐藏设计一条灯带,白色的墙面和木质纹理,在暖黄的灯光下,呈现出别样的视觉感受。


卧室延续了简洁格调,素色的床头壁纸,几何造型的图案,让单调的空间变得有趣许多。床头柜采用不对称设计,一侧柜子一侧木墩,搭配上线型壁灯,视觉效果还是相当不错。衣柜门选择了灰色系列,沉稳内敛给人一种踏实的舒适感。


通往阁楼的楼梯,延续了白色和木色的搭配,保持了整体格调统一。转角阁楼处采用玻璃隔断,保持空间通透。

阁楼层高有限,保留了原有格局,布置上家具作为客房使用。看完整体装修感觉不错吧,简洁明亮的空间设计,有阳光餐厅还有花园,简直太爽了。