气辅注塑成型技术介绍
一、前言
气辅注塑工艺是国外八十年代研究成功,九十年代才得到实际应用的一项实用型注塑新工艺,其原理是利用高压隋性气体注射到熔融的塑料中形成真空截面并推动熔料前进,实现注射、保压、冷却等过程。由于气体具有高效的压力传递性,可使气道内部各处的压力保持一致,因而可消除内部应力,防止制品变形,同时可大幅度降低模腔内的压力,因此在成型过程中不需要很高的锁模力,除此之外,气辅注塑还具有减轻制品重量、消除缩痕、提高生产效率、提高制品设计自由度等优点。近年来,在家电、汽车、家具等行业,气辅注塑得到越来越广泛的应用,前景看好。科龙集团于98年引进一套气辅设备用于生产电冰箱、空调器的注塑件。
現應用比較廣泛的是英國Cinpres的气体輔助系統, 現在已經和香港气体輔助注塑有限公司(GIL)合并, 現公司名稱為CGI. 目前有TCL, 東江, 格力(珠海), 新加坡富裕,神龍汽車(武漢)應用此技術.

二、气辅设备
气辅设备包括气辅控制单元和氮气发生装置。它是独立于注塑机外的另一套系统,其与注塑机的唯一接口是注射信号连接线。注塑机将一个注射信号注射开始或螺杆位置传递给气辅控制单元之后,便开始一个注气过程,等下一个注射过程开始时给出另一个注射信号,开始另一个循环,如此反复进行。
气辅注塑所使用的气体必须是隋性气体(通常为氮气),气体最高压力为35MPa,特殊者可达70MPa,氮气纯度≥98%。
气辅控制单元是控制注气时间和注气压力的装置,它具有多组气路设计,可同时控制多台注塑机的气辅生产,气辅控制单元设有气体回收功能,尽可能降低气体耗用量。
今后气辅设备的发展趋势是将气辅控制单元内置于注塑机内,作为注塑机的一项新功能。三、气辅工艺控制
1.注气参数
气辅控制单元是控制各阶段气体压力大小的装置,气辅参数只有两个值:注气时间(秒)和注气压力(MPa)。
2.气辅注塑过程是在模具内注入塑胶熔体的同时注入高压气体,熔体与气体之间存在着复杂的两相作用,因此工艺参数控制显得相当重要,下面就讨论一下各参数的控制方法:a.注射量
气辅注塑是采用所谓的“短射”方法(short size),即先在模腔内注入一定量的料(通常为满射时的70-95%),然后再注入气体,实现全充满过程。熔胶注射量与模具气道大小及模腔结构关系最大。气道截面越大,气体越易穿透,掏空率越高,适宜于采用较大的“短射率”。这时如果使用过多料量,则很容易发生熔料堆积,料多的地方会出现缩痕。如果料太少,则会导致吹穿。

如果气道与流料方向完全一致,那么最有利于气体的穿透,气道的掏空率最大。因此在模具设计时尽可能将气道与流料方向保持一致。
b.注射速度及保压
在保证制品表现不出现缺陷的情况下,尽可能使用较高的注射速度,使熔料尽快充填模腔,这时熔料温度仍保持较高,有利于气体的穿透及充模。气体在推动熔料充满模腔后仍保持一定的压力,相当于传统注塑中的保压阶段,因此一般讲气辅注塑工艺可省却用注塑机来保压的过程。但有些制品由于结构原因仍需使用一定的注塑保压来保证产品表现的质量。但不可
使用高的保压,因为保压过高会使气针封死,腔内气体不能回收,开模时极易产生吹爆。保压高亦会使气体穿透受阻,加大注塑保压有可能使制品表现出现更大缩痕。
c.气体压力及注气速度
气体压力与材料的流动性关系最大。流动性好的材料(如PP)采用较低的注气压力。几种材料推荐压力如下:
塑料种类熔纸(g/10min) 使用气压(MPa)
PP 20~30 8~10
HIPS 2~10 15~20
ABS 1~520~25
气体压力大,易于穿透,但容易吹穿;气体压力小,可能出现充模不足,填不满或制品表面有缩痕;注气速度高,可在熔料温度较高的情况下充满模腔。对流程长或气道小的模具,提高注气速度有利于熔胶的充模,可改善产品表面的质量,但注气速度太快则有可能出现吹穿,对气道粗大的制品则可能会产生表面流痕、气纹。
d.延迟时间
延迟时间是注塑机射胶开始到气辅控制单元开始注气时的时间段,可以理解为反映射胶和注气“同步性”的参数。延迟时间短,即在熔胶还处于较高温度的情况下开始注气,显然有利于气体穿透及充模,但延迟时间太短,气体容易发散,掏空形状不佳,掏空率亦不够。
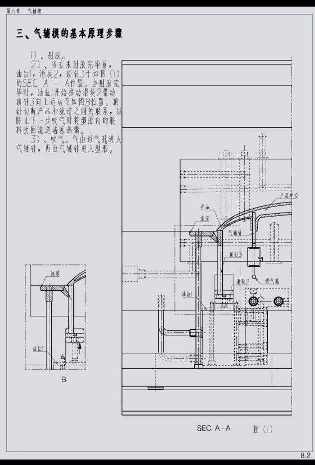
四、气辅模具

气辅模具与传统注塑模具无多大差别,只增加了进气元件(称为气针),并增加气道的设计。所谓“气道”可简单理解为气体的通道,即气体进入后所流经的部分,气道有些是制品的一部分,有些是为引导气流而专门设计的胶位。
气针是气辅模具很关键的部件,它直接影响工艺的稳定和产品质量。气针的核心部分是由众多细小缝隙组成的圆柱体,缝隙大小直接影响出气量。缝隙大,则出气量也大,对注塑充模有利,但缝隙太大会被熔胶堵塞,出气量反而下降。
五、气辅应用实例
气辅注塑最适宜于具有粗大柱孔或厚筋的制品以及胶位粗大内部有孔穴的制品(如手柄类、衣架类),国内几间大型电视机厂家都采用气辅注塑工艺生产电视机前框,可节省原材料1 0%~20%并大幅度降低锁模力。


冰箱顶盖板是大型平板注塑件,质量要求高,其模具采用直浇口入胶,在传统注塑时极易产生变形,影响冰箱的装配。采用气辅后,变形量得到有效控制,拱曲变形量由原来的1.7~ 2 mm减少到0.5mm以下。


空调器的横向风板是一长条型结构,截面形状“不规则”,由于表面不允许有熔接痕,模具采取单点水口入胶,料流程长,用传统注塑极易产生变形、缩痕,装在空调器上会影响风向电机的转动,严重者甚至会烧毁电机,因此改善变形量显得尤为重要。采用气辅工艺后此问题迎刃而解,变形量由原来的3~4mm降为1 mm以内。
手柄则是另一类型的制品,在气辅出现前它是由两件制品装配而成,需要做两付模具而且装配后强度不够,整体也不够美观。采取气辅后可“合二为一”,省略一付模具及装配工序。六、总结
气辅注塑是近年兴起的一项新工艺,在国外已得到广泛应用,在国内尚处于初始阶段,目前大型家电厂已陆续开始应用这项新工艺,相信随着各厂商对气辅工艺认识的加深,这项新工艺会应用得越来越普遍。


气辅注塑成型工艺探索与市场前景
多年来,人们一直在研究中空塑料制品的成型加工技术,其中德国Rohm GmbH的Ernst Friederich最先发明气体辅助注射成型工艺。随着中国塑料工业迅速发展,塑料制品的应用范围越来越广,需求量越来越大,气辅技术的应用市场也不断扩大。开发适合中国塑料加工业应用的气辅装置,满足国内注塑件成型加工市场的需求,摆脱国外公司对国内市场与技术的垄断,对提高中国塑料制品的质量、降低其成本有着重要的影响。目前,北京中拓机械有限责任公司已率先完成气辅装置的研制、开发及生产。自2000年投入国内市场后,已协助多个用户成功地进行了气辅模具改进、开发等工作。同时还培养了一支专业的气辅模具服务队伍,为广大客户提供包括模具流动分析、气辅模具设计等技术服务。根据我们对气辅工艺的探讨,以下对气辅成型技术原理、应用前景及市场情况作简单介绍。
工艺原理
气体辅助注塑工艺可分为四个阶段:

第一阶段:塑料注射。熔体进入型腔,遇到温度较低的模壁,形成一个较薄的凝固层。
第二阶段:气体入射。惰性气体进入熔融的塑料,推动中心未凝固的塑料进入尚未充满的型腔。
第三阶段:气体入射结束。气体继续推动塑料熔体流动,直到熔体充满整个型腔。
第四阶段:气体保压。在保压状态下,气道中的气体压缩熔体,进行补料确保制件的外观。气辅成型应用
气体辅助注射可以应用在除特别柔软的塑料以外的任何热塑性塑料和部分热固性塑料。利用气辅成型的制品根据结构形状不同,大致分为3类:棒类制品,类似把手之类大壁厚制件;板类制品,容易产生翘曲变形和局部熔体聚积的大平面制件;特殊制品,由传统注塑技术难以一次成型的特殊结构的制件。
棒类制品
气辅成型技术在棒状制件的成型中显示出明显的优势。一般采用中空注射的气辅工艺,即气体穿透整个制件的壁厚部位形成气道。制件的设计主要是气道的设计,应考虑以下方面:


(1)制品截面最好接近圆形。避免尖角,采用大的圆角过渡;避免熔体在角部产生堆积;保证整个制件壁厚均匀。
(2)采用矩形截面时,气道通常为椭圆形。为保证气体穿透的均匀性,截面应满足宽高比≦3-5。
(3)制件长度应大于制件截面高度的5倍,保证沿制件长度方向气体尽量穿透,以得到均匀的壁厚。
(4)气道转弯处制件应有足够大的圆角半径,避免内外转角处的壁厚差异。
(5)气道截面尺寸变化应平缓过渡,以免引起收缩不均。
(6)气道入口不应设置在外观面或制件承受机械外力处。
(7)进气口位置应该接近浇口,以保证气体与熔体流动方向一致,但两者距离应大于30m m,以避免气体反进入浇口。
板类制品
气辅注塑成型技术的主要应用之一就是板类制件的成型。因为气体总是沿着阻力最小的方向前进,容易在较厚的部位进行穿透,因此,在板类制品设计时常将加强筋作为气道,一般设在制品的边缘或壁的转角处。对制品的设计也就是对加强筋和肋板的设计,即气道的设计。基本原则如下:

对于有加强筋的塑件,有下面两种方案,一个是将加强筋的根部加厚(倒一个大角即可),沿其根部可设计一个气道,这样可以避免出现收缩痕。或者在条件允许的情况下,将其改为如图1的形状,这样,在同样的情况下,可以减少塑件总厚度的尺寸,且变形和收缩都小。
图1 加强筋
(1)在设计制作加强筋时,应避免设计又细又密的加强筋。尺寸太小无法给气体提供良好的通道,会出现“鼓包”等现象,可改进设计为较厚、较少的加强筋。但尺寸太大又会造成局部的熔体堆积,冷却收缩后形成表面凹陷,甚至当用作气道的边缘筋与中间的薄板部分厚度差异较大时,熔体先进入筋部,注入的气体向最后充满的薄板部分穿透并形成气穴,降低制品局部的表面强度。
(2)“手指”效应是大平面制件容易产生的主要问题。在气体保压阶段,平板部位体积收缩而产生的缺料是依靠气道和平板之间的熔体来补偿,因此产生了所谓的“手指”效应,导致壁厚不均匀。产生手指效应的主要因素是平板的壁厚,因为壁厚越大,产生手指效应的危险性就越大。另一方面,平板部分壁厚越厚,气道的气体越易串入平板部位,产生“二次穿透”,因此,设计板状制件时应注意平板部分壁厚不宜超过4mm。
(3)当制件仅由一个气针进气而形成多个加强筋或肋板(气道)时,气道不能形成回路。
(4)为避免熔体聚集产生凹陷,气道末端的外形应采用圆角过渡。
(5)采用多点进气时,气道之间的距离不能太近。
(6)气道布置尽量均匀,尽量延伸至制品末端。
特殊制品
特殊制品主要是指利用传统成型技术难以一次成型的特殊结构的制件。
如果塑件有的地方有大平面,或由于有特殊要求,某处平面的厚度偏厚,采用普通方法,将产生收缩痕、气孔、扭曲等现象。如果在此处加适当的喷嘴,利用气体进行此处的成型和保压,就可以避免上述缺陷,但会在塑件上留下封气的痕迹。可将其放在不起眼的位置。如图2所示,利用四周的加强筋封住气体,即去除截面为三角形的密封环。
图2 大平面零件的气辅注射
模具设计
模具设计基本原则
(1)浇注系统应采用点浇口,普通流道、热流道均可,热流道必须是针阀式可封闭结构。
(2)气体辅助注射成型由于气道可起流道的作用,容易充填,因此浇口数可大大减少。
(3)一般情况下,气体往往不能达到气道尾部,如气道必须穿通,可在气道尾部加设“溢料井”。
(4)气辅成型模具由于塑件筋数减少,因此模具制造容易。但模具加工必须保证塑件和气道的壁厚,由于气体对壁厚十分敏感,因此当壁厚制造超差时,气体就可能乱窜。同时,气辅注射成型模具的冷却系统十分重要。
气辅成型模具技术特点
(1)模具型腔的设计应尽量保证流动平衡以减小气体的不均匀穿透,保证流动平衡也是普通注射成型模具的一条设计原则,但对气辅成型制品来说这一点更重要。
(2)模具设计应考虑对工艺参数的影响,因为气辅成型对工艺参数比普通成型敏感得多。在气辅成型中,模壁温度或注射体积的微小不同会导致对称件中气体穿透的不对称,例如成型如图3(a)所示的对称制品,开始上下两侧注入相同体积的塑料熔体(图3(b)),但假设由于冷却水管串联布置导致上下两侧模壁温度上冷下热,则上侧熔体粘度将比下侧大,使下侧气体穿透较上侧强,有效流长较上侧短(图3(c)),随着气体的注射这种倾向越来越强,最后上下两侧将出现不同程度的气体穿透(图3(d))。
图3 模壁温度的微小变化差异引起的气体穿透不均匀
气体辅助注塑设备
(1)普通注塑机(计料精度稍高些为好)。
(2)氮气控制系统,包括自封闭式气辅喷嘴。
(3)高压氮气发生器。
(4)工业氮气钢瓶以及提供增压动力的空气压缩机。
(5)为气体辅助注射设计制造的模具。
这五个部分的关系框图如图4所示。
图4 气体辅助注塑各设备的关系
(6)气辅喷嘴
喷嘴进气方式,即使用专用的自封闭式气辅喷嘴,在塑料注射结束后,将高压气体依靠喷嘴直接进入塑料内部,按气道形成一个延展的封闭空间—气腔并保持一定压力,直至冷却,在模具打开之前,通过座台后退使喷嘴与制品料道强行分离,使气体排出制品。
(7)气针
气针进气方式即在模具的某个特定位置,安装排气装置—气针。当塑料注入型腔后,即将气针包裹在塑料内部;此时高压气体排出,气针在塑料内部按气道形成一个延展的封闭空间—
气腔,并保持一定压力,直至冷却,在模具打开之前,气腔内的气体依靠气针由控制装置排出塑料内部。

气辅工艺
气辅成型的工艺特点
(1)决定工艺参数时应考虑其对气体穿透的影响,气辅成型的一次穿透主要取决于塑料熔体体积在型腔中所占的比例,并受流体力学规律的支配,二次穿透发生在较厚的部位并向各个方向扩展。工艺参数对气体穿透的强度的影响主要表现在气体穿透长度和气道表层塑料厚度上。一般来说,较高的气体注射压力、较高的熔体温度、较低的熔体粘度和较短的切换延迟时间导致较短的穿透长度和较薄的气道壁厚。
(2)充模时建议采用低压气体,保压时再增加压力补偿收缩,原因是熔体与气体接触的边界层中会溶解一些气体,如果保压结束后塑料尚未完全固化,则泻压时这些气体会膨胀造成气道内表面气泡,充模时气体压力越大,熔体表界层中溶解的气体越多,保压结束后气体的膨胀效应越强。
(3)要注意避免卸压太陡在气道内表面引起广泛的气体膨胀。
(4)必须尽力避免喷射,因为出现喷射现象时熔体会发生阀合和自由表面冷却,气体在这样的非均匀熔体中穿透到第一个阀合处时就会吹穿熔体表面,造成成型失败。可以采用型腔按逆重力方向充填,在制品最薄处开始充填等方法来避免喷射。
(5)在熔体注射结束后气体注射尚未开始时的切换时间内应尽力避免熔体流动速度发生较大变化,因为这种变化会在制品表面引起迟滞线和光泽改变。
(6)料量及计料精度:影响实际气辅工艺的核心就是料量,料量的多少以及注塑机的计料精度,都会影响气辅工艺的效果及稳定性。原因是:当模具型腔内充满塑料时,气体是很难在塑料内部形成空腔的。只有在缺料的状态下,留出气腔的位置,当气体注入型腔后,缺省的塑料在内部气体的膨胀推动下,充满整个型腔。因此,料量多少直接关系到气辅工艺的成型效果,塑机计料精度的误差将关系到气辅工艺生产的稳定性。
(7)影响气辅工艺的还有注塑速度、料温、注射压力等因素。因为缺省的塑料要完成充满型腔的运动过程,则料的流动性也会影响成型的效果,通过调整注射速度、料温、注射压力等参数可使料的流动性得到提高。
气辅工艺的调整方法
气辅工艺在调整时,建议按照以下顺序进行相应调整:
(1) 在不注气的情况下,先将制品打满并观察塑料的流动状态以及模具的状态;
(2) 逐渐减少料量,观察缺料时各浇口料流的分配平均性,应当尽量保证模具的料流对称性;
(3) 通常的气辅工艺一般采用两段或三段式注气,薄壁零件压力适合高压力注气2500-4000 psi,厚壁或棒状制品适合低压力注气1000-2500psi。
(4) 当缺料达到90%左右时开始注气,若制品局部仍有收缩现象,建议再适当减少料量直至出现制品不满现象后,再添加料量至打满状态。
(5) 适当调整气体压力,气体保压时间以及启动延时达到适合的状态。
(6) 喷嘴进气方式中务必注意采用后退座台方式排气。
(7) 气针进气方式中务必注意气针排气是否通畅,如排气不畅需及时清理。
应用前景及市场情况
气辅技术可在家电、汽车、家具、日常用品、办公用品等几乎所有塑料制件领域得到应用。采用气辅技术可以减少成型的锁模力,缩短成型周期,减少翘曲变形。同时,由于成型所需注射压力的降低,从而可以在较小的注塑机上成型较大的制品。从表面上看,气辅技术的优势源于利用高压气体把厚壁的内部掏空;从工程力学的原理上看,气辅技术的应用改变了材料在制品断面上的分布,使制件刚性和强度得以改善,承载力增加,这在汽车、飞机、船舶等交通工具的轻量化方面显示出了巨大且诱人的应用优势和前景。
气辅技术可用于电脑显示器及打印机等生产
气辅技术在美、日、欧等发达国家和地区正日益得到广泛应用,短短几年,该技术用于注塑制品成型的模具配套率已达10%。随着时间的推移,在市场竞争极为激烈的情况下,更加完善的气辅技术一定会为更多的塑料制件制造商所接受。气辅技术在国内的应用首先体现在壳类制品和轿车内饰件等家电、汽车、仪器、仪表、家具等行业。气辅技术的最大应用领域是家电产品,就日本电视机行业来说,64cm以上大屏幕彩电几乎90%以上采用气辅成型技术。目前,中国年产电视机2500万台,其中彩电1200万台。在彩色电视机份额中,占20%左右的64cm以上大屏幕彩电有240万台,而且大屏幕彩电的数量随市场的需求正逐年递增。在汽车注塑件方面,美国福特汽车公司用气辅技术成型了汽车保险杠、汽车内饰件面板、仪表板等,还有美国克莱斯勒复合概念车整个车身以气辅注射成型,这些都为气辅技术在汽车注塑件上的应用开了先例。仿硬木家具在外观上需要模拟木质材料较粗的圆柱或立方结构,而普通塑料加工厂中必须采用的扁平板片结构具有冷却速度慢、材料收缩不易控制、制品翘曲变形严重等难以克服的障碍及料量大、成本高等缺点,传统的注塑工艺很难解决这些问题,采用气辅注塑则可迎刃而解。
气辅注塑成型技术在塑料产品中的应用
________________________________________
气体辅助注射成型技术可应用于各种塑料产品上,如电视机或音箱外壳、汽车塑料产品、家具、浴室、厨具、家庭电器和日常用品、各类型塑胶盒和玩具等。具体而言,主要体
现为以下几大类:
管状和棒状零件,如门把手、转椅支座、吊钩、扶手、导轨、衣架等。这是因为,管状结构设计使现存的厚截面适于产生气体管道,利用气体的穿透作用形成中空,从而可消除表面成型缺陷,节省材料并缩短成型周期。
大型平板类零件,如车门板、复印机外壳、仪表盘等。利用加强筋作为b体穿透的气道,消除了加强筋和零件内部残余应力带来的翘曲变形、熔体堆积处塌陷等表面缺陷,增加了强度/刚度对质量的比值,同时可因大幅度降低锁模力而降低注射机的吨位。
形状复杂、薄厚不均、采用传统注射技术会产生缩痕和污点等缺陷的复杂零件,如保险杠、家电外壳、汽车车身等。生产这些制品时,通过采用气体辅助注射技术并巧妙布置气道,适当增加加强筋数目,同时利用气体均匀施压来克服可能的缺陷,使零件一次成型,不仅简化了工艺,还降低了生产成本。
气辅注射成型及设计要点
作者:天津科技大学张晓黎吴崇峰屈春起
摘要:概述了气辅注射成型过程中材料的选择、气道及模具的设计
关键词:气辅注射;气道;模具设计
气辅注射成型GRIM(Gas-Assisted Injection Molding)为一种新型的注射成型工艺,近几年已在国外得到广泛的应用,国内的使用也越来越多。其原理是利用压力相对低的惰性气体(氮气因为价廉安全又兼具冷却剂的作用而被常用,压力为0.5-300 MPa)代替传统模塑过程中型腔内的部分树脂来保压,以达到制品成型性能更加优良的目的。
1 气辅注射成型的优点
气辅注射成型克服了传统注射成型和发泡成型的局限性,具有以下优点:
1.1制件性能良好
(1)消除气孔和凹陷在制件不同壁厚连接处所设的加强筋和凸台中合理开设气道,欠料注射后气体导入,补偿了因熔体在冷却过程中的收缩,避免气孔和凹陷的产生。
(2)减少内应力和翘曲变形在制件冷却过程中,从气体喷嘴到料流末端形成连续气体通道,无压力损失,各处气压一致,因而降低了残余应力,防止制件翘曲变形。
(3)增加制件的强度制件上中空的加强筋和凸台的设计,使强度重量比比同类实心制件高出大约5,制件的惯性矩工大幅度提高,从而提高制件使用强度。
(4)提高设计的灵活性气辅注射可用来成型壁厚不均的制品,使原来必须分为几个部分单独成型的制品实现一次成型,便于制件的装配。例如国外一家公司原来生产的以几十个金属零件为主体、形状复杂的汽车门板,通过GAI M技术并采用塑料合金材料实现了一次成型。
1.2 成本低
(1)节约原材料气辅注射成型在制品较厚部位形成空腔,可减少成品重量达10%一50%
(2)降低设备费用气辅注射较普通注射成型需要较小的注射压力和锁模力(可节省25%一5 0%),同时节约能量达30%
(3)相对缩短成型周期由于去除了较厚部位芯料,缩短冷却时间可达50%正是基于这些优点,气辅注射适用于成型大型平板状制品如桌面、门、板等;大型柜体如家用电器壳体、电视机壳、办公机械壳体等;结构部件如底座、汽车仪表板、保险杠、汽车大前灯罩等汽车内外饰件。
2 成型材料的选择
理论上讲,所有能用于常规注射成型方法的热塑性塑料均适用于气辅注射成型,包括一些填充树脂和增强塑料。一些流动性非常好,难以填充的塑料如热塑性聚氨酷成型时会有一定困难;粘度高的树脂所需气体压力高,技术上也有难度;玻璃纤维增强材料对设备有一定的磨损。
在气辅成型过程中,由于制件的成型壁厚和表面缺陷在很大程度上由原料性能决定,改变过程参数对其影响并不很大,因此成型原料的选择极为重要。表1是用于气辅注射成型的常用塑料。
PA(聚酰胺)和PBT(聚对苯二甲酸丁二酸酯)具有独特的结晶稳定性,尤其适合用于气辅注射成型;PA6,PA66和PP也经常被用于气辅成型;一些部分结晶型树脂,成型时内部靠近气道一侧由于冷却速率相对较慢,无明显无定型边界层产生,但外侧因为模壁的陕速冷却会产生无定型边界层,从而影响制品质量;对于玻璃纤维增强塑料,在模壁处会产生轻微的分子定向,且在模壁下一定距离处(约距制品外表面1mm处)沿料流方向达到最大成型高强度制件可选用具有较高弹性模量的树脂,实际生产过程中应根据制件使用要求和具体成型条件选择合适的树脂材料。
3 制件中气道的设计
气道设计是气辅成型技术中最关键的设计因素之一,它不仅影响制品的刚性同时也影响其加工行为,由于它预先规定了气体的流动状态,所以也会影响到初始注射阶段熔体的流动,合理的气道选择对成型较高质量的制品至关重要。
(1)常见气道的几何形状
对于带加强筋的大型板件,气辅注射成型时,其基板厚度一般取3一6mm,在气体流动距离较短或尺寸较小的制件中,基板厚度可减至1.5一2.5 mm;加强筋的壁厚可达到与其相接部分壁厚的100%一125%而不会产生凹陷;气道的几何形状相对于浇口应是对称或是单方向的,气体通道必须连续,体积应小于整个制件体积的10%。
(2)制件的强度分析
成型传统带加强筋的制件经常出现凹陷、翘曲变形等,而图1所示各种断面几何形状加强筋的板件采用气辅注射成型,既保证了制品强度,又克服了传统注射成型的缺点。通常,相同基板厚度条件下,类似图1(e)带有空心宽T型加强筋的比带空心窄T型加强筋的制件强度要高,后者又比相同截面带有类似图1(a)的空心半圆型加强筋板件的强度要高。
制件强度随受力大小和其形式不同变化很大,虽然采用加强筋可增大制品刚度,但若对其施加局部集中应力,就会大大削弱制品强度。
(3)气道尺寸
气道的尺寸设计与填充气体的流动方向密切相关,气体在流道内总是沿着阻力最小的方向流动。稳0定的牛顿流体通过直径为D的圆管,其压降公式为ΔP=32μVL/D,其中μ为流体粘度,V为平均流速,L为流体段长度,D为管径,因为气全粘度极小,低于树脂的0.1%,而且压降在长度方向上可被忽略,因而只需考虑树脂压降产生的阻力。
假塑性流体在圆管中流动的压降公式与牛顿流体形式相似,因此利用上述公式而不必考虑实际流体及气体的状况,比较基于气体近浇点不同方向的压降ΔP(即比较各段的L和D的大小),就可定性地解决气体朱充动方向问题ΔP小的方向即为气体的优先流动方向。
改变流道尺寸直接导致不同方向压降的变化,从而改变气体的流动方向,并影响制件的成型质量。
4 模具设计
由于气辅注射成型采用相对较低的注射压力和锁模力,所以除可采用一般模具钢制做模具外,还可采用锌基合金、锻铝等轻合金材料制造。
气辅注射成型过程的模具设计与普通注射成型相似,模具及制件结构设计造成的缺陷并不能通过调整成型过程中的参数来弥补,而是应及时修改模具和制件结构的设计,普通注射成型中所要求的设计原则在气辅注射成型过程中依然适用,以下主要介绍其不同部分设计时应注意事项:
(1)要绝对避免喷射现象虽然现在气辅注射有朝着薄壁制品、生产特殊形状弯管方向发展的趋势,但传统的气辅注射仍多用来生产型腔体积比较大的制件,料流通过浇口时受到很高的剪应力,容易产生喷射和蠕动等熔体破裂现象。设计时可适当加大进浇口尺寸、在制品较薄处设置浇口等方法来改善这种情况。
(2)型腔设计由于气辅注射中欠料注射量、气体注射压力、时间等参数很难控制一致,因此气辅注射时一般要求一模一腔,尤其制品质量要求高时更应如此。实际生产中有过一模四腔的例子,采用多型腔设计时,要求采用平衡式的浇注系统布置形式。
(3)浇口设计一般情况只使用一个浇口,其位置的设置要保证欠料注射部分的熔体均匀充满型腔并避免产生喷射。若气针安装在注射机喷嘴和浇注系统中,浇口尺寸必须足够大,防止气体注入前熔体在此处凝结。
气辅注射中最为常见的一个问题是气体穿透预定的气道进入制件薄壁部分,在表面形成类似指状或叶状的气体流纹(Gas fingering),甚至少数几个这样的“指纹"效应对制品的影响也是致命的,应该极力避免。
研究表明,形成这类缺陷的主要原因是由于进浇口尺寸和气体延迟时间设置不当造成的,而
且这两种因素常常相互作用,比如当采用较小的浅口和较短的延迟时间时,就极易产生这种不良后果,既影响了制品外观质量又极大地降低了制件强度。一般可采用缩短气道长度,加大进浇口尺寸,合理控制气体压力的方法避免这种不利情况的发生。
(4)流道的几何形状相对于浇口应是对称或单方向的,气体流动方向与熔融树脂流动方向必须相同。
(5)模具中应设计调节流动平衡的溢流空间,以得到理想的空心通道。
气辅注射成型技术近些年在家用电器、汽车、家具、办公用品等行业广泛应用,并且朝着提高制品尺寸稳定性、制造表面性能优良的薄壁制品、生产特殊形状管材、取代汽车工业中金属制件等方向发展,相信在以后的工业生产中气辅注射技术仍将发挥其重要