工作原理:
火灾排烟:火灾时接消防中心指令开启防烟分区的防火排烟阀、管道式排烟风机排烟,也可以在防烟分区就地开启防火排烟阀、管道式排烟风机排烟并向消防中心报告。当烟气温度超过280℃时,防火排烟阀、管道式排烟风机自动关闭,并向消防中心报告。
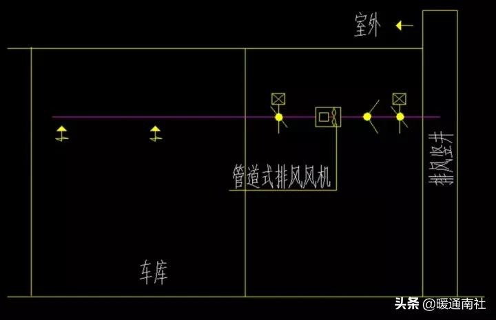
生产车间排除生产烟雾:需要时手动控制开启管道式排烟风机通过排烟管道将烟雾排到室外。
管道式排烟风机和排烟管道安装在室内,排烟口接到室外安全地方排放。
功能原理示意:

生产车间排除生产烟雾:

火灾排烟:

设备实物:



设备特点:
轴流式排烟风机扬程较小 (400 Pa以下),耗电小,结构简单造价低,安装方便。
混流式排烟风机是中压风机 (400~600Pa),耗电小,结构简单造价低,安装方便。
厢式风机厢式内部的风机可以是轴流式风机。也可以混流式风机。离心式风机。主要优点是设备与厢体接触的底座上面装有减震装置,而且设备封闭的安装在机箱内部,所以对于室内来说传入的噪声相对要小些。因为增加了以上介绍的处理工艺,所以整体设备造价相对要高一点。
以上是利用动力进行强制性排烟的常用设备。
管道材质:可以是砖制.混凝土制管道井,可以是钢板制风管,也可以是无机不燃玻璃钢制风管。
管道出口方向:一般通过管道引至屋顶排至室外。
优化建议:
设备在室内吊装安装时,设备要安装减震吊架,并且在风管和设备连接处安装防火软接,这些处理对消声减震有很好的效果。
来源:互联网。