明明是在昆明怎么感觉像生活在欧洲一样
—昆明官渡区世纪城玉春苑大户型220平米
都说外来的和尚好念经,同样异域风情的家装也深受国人的喜欢,欧式风格端庄典雅,同时又不失空间立体感,深受家装者的喜爱,今天“创艺装饰”便为大家介绍一款欧式风格的家装,让大家看看什么才是“欧式高大上”。
设计案例:昆明官渡区世纪城玉春苑大户型220平方
风格:欧式风格
户型:大户型
符号:优雅简约,平平淡淡的真我
设计师:杨阳
使用品牌:萨米特瓷砖、鹰卫浴洁具、拜尔强化木地板、法莱蒂衣柜及法莱蒂橱柜
设计说明:

昆明创艺装饰
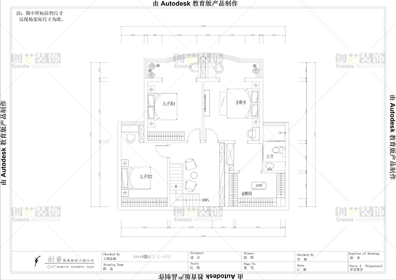
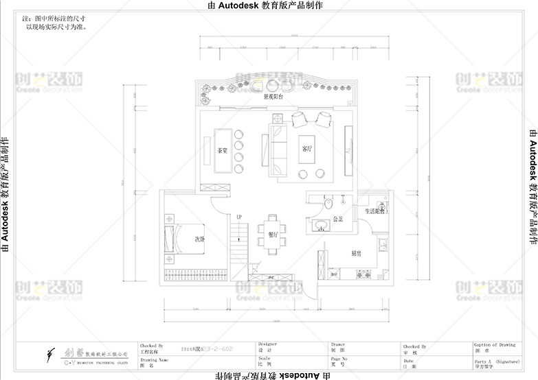
本案例为复式楼层,其中一楼为客厅等公共区域,二楼则为家人的休息区。

昆明创艺装饰
设计师将一楼划分为几个功能区域,其中包括客厅、茶室、厨房、餐厅、次卧、阳台等区域,功能齐全。二楼则主要是分为一个主卧,两个儿童房,衣帽间等等。
客厅:

昆明创艺装饰
这个角度刚好可以展示客厅全景,欧式的家具,大气上档次。宽大的沙发,在黑色茶几的衬托下显得格外有格调,圆形的吊灯,将地上的萨米特地砖照耀的明亮。室内采用浅色的窗帘,在晴朗天气,阳光可以通过窗帘照满整个客厅。
茶室:

昆明创艺装饰
户主是个爱茶之人,设计师根据户主的需求,在客厅的一角设计了一个茶室,茶盘、茶具、茶艺六君子等茶器井然有序的摆放其列,茶桌上的盆栽是朋友送的乔迁贺礼,后面还专门设计了一扇柜子,专门放主人的好茶。
约上三五好友,泡上一壶清茶,谈谈最近发生在身边的事,以茶会友,谈笑风生。
餐厅:

昆明创艺装饰
茶室有茶柜,餐厅当然要有酒柜,白色的酒柜上摆放着主人珍藏的美酒。白色的餐桌,搭配着皮质的餐椅,在吊灯的照耀下,安静的享受着丰盛的晚餐。
卧室:

昆明创艺装饰
忙碌了一天,女主人在梳妆台上做护理,男主人拿起床头的书看了起来,看着心中的彼此那个他(她),眼中充满了爱意,卧室是两个人的温馨之所,爱是这里的主题。
卧室还选用拜尔强化木地板,木质的地板可以起到一定的保温左右,让整个卧室冬暖夏凉。
此案设计非常的时尚而大方,能够有强烈的空间感和立体感,多功能的个性时尚空间,色彩的巧妙搭配都能让人们的家变得温暖而幸福。
创艺装饰为昆明21年本土知名家装品牌,中国优秀家装企业,幸福家装幸福价,让你省时省心省力,更省钱。
创艺装饰为您提供,0元报价、0元设计、0元量房服务!
省心新整装、新年送大礼,八重好礼送给你!
预约咨询热线:0871-65656588
创艺装饰网站:http://www.yncy1997.cn/
创艺装饰幸福家装、幸福价!为您提供超高性价比的一站式家居装修解决方案。
关注头条号抢500元装修优惠券!每天发布家装知识攻略,装修设计案例,让您掌握2019年家居装修的潮流趋势~

VX扫码领取500元装修优惠券