
滑块通用结构形式

1 圖(1)是常用的滑块結構形式;如滑塊尺寸L較小,或當采用圖(1)的形式,模板在滑塊W方向尺寸有干涉時,可選用圖(2)的結構形式;采用圖(4)所示的結構形式時,要經專案主管確認.

2 為保証良好的配合關系,滑塊與滑塊固定板配合部分的R角一般保証: (a)內外角相差0.5MM. (b)配合部分的直段E不小于3MM,對圖(1)和(2)中所示D值在8MM以上(含)的大型滑塊,建議外角R取2.5,內角r取2.0; 小滑塊必要時可取外角R=0.5MM,內角r依線割線徑(設計者不需注明,按尖角r=0繪圖即可). (c)滑塊與滑塊固定板間要按“公差及間隙標准”放間隙.

3 滑塊尺寸: (a)B和C的取值要使整個滑塊看上去比例協調,一般取B=C; (b)D尺寸不能大于B,一般可取D/B=3/5; (c)圖(1)和圖(2)中尺寸A、B、C、D一般最小取3MM; (d)F尺寸取滑塊長度L的一半.3.4 滑塊行程一般不大于H/2(特殊情況下,經專案主管確認,可取滑塊行程小于2H/3),斜角β不小于45°大型滑塊一般取70°或55°,取45°時要請示上級).



滑塊固定方式

如圖(5),(6),(7),(8):有四種控制滑塊行程的方式



圖(5)用於中小型滑塊;

圖(6)用於大中型滑塊;

採用圖(7)的形式要經專案主管確認.



圖(8):等高套筒固定方式, 適用於要求中間垂直上下運動,左右滑塊水平運動時.(等高套筒長度取夾板厚度加0.5MM,並注意滑塊的脫料有無干涉.)

滑塊設計注意事项

1 滑塊材質:SKD11 熱處理:HRC58.

2 滑塊一般不允許有兩個挂位(燕尾).

3 直壁限位小滑塊在不影響模具強度的前提下都要做成可快速拆卸的形式.

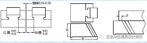
4 滑塊長度在270MM以下不分段,長度超過270MM才考慮分段;滑塊分段后保証間隙為0.10~0.20MM,即相應尺寸公差取值為-0.05/-0.10MM(圖(9)所示).

5 滑塊寬度W與高度H的比例要協調,必要時可加大滑塊的高度,盡量避免如圖(10)所示的W比H大很多的結構形式.(滑塊及相關模板高度選取要參考相應的方鋼規格,例大滑块的H*W尺寸:43*63;48*73;63*73等)

6 因產品原因滑塊結構如圖(11)所示時,一般要保証F不小于15MM.(针對大滑塊)



7 锁骨滑塊壓板注意事項: (a).根據滑塊的大小選用螺丝規格(M8、M10等)和數量(一個或兩個);例:在大滑塊中不影響強度時可优先考慮選用兩個M8的螺絲,在不能用兩個M8只能用兩個M6的螺絲鎖時可优先考慮用一個M10的螺絲來代替兩個M6的螺絲; (b).注意滑塊上壓板是否太寬而影響到滑塊的強度(圖(12)所示); (c).注意是否會發生圖(13)壓板壓死滑塊的狀況,這時可采用圖(14)中的方法:設計成滑塊上壓板槽寬比滑塊固定板上的壓板槽寬度大.



8 在設計滑塊時,要考慮滑塊外形不要突變以防止應力集中,如圖(15)中的滑塊避位在條件允許的情況下,可以做成圖(16)中的形狀.(也可依狀況將滑塊易斷裂的局部做成可拆換式如圖(17)).



圖(18)中上模頂料銷頂出高度尺寸H的取值在滑塊的行程小于3MM時,頂料銷的頂出高度等于滑塊的行程;當滑塊的行程超過3MM時,頂料銷的頂出高度取3MM;下模頂料銷的頂出高度與滑塊所需的行程相等(如圖(19)).



10 大滑塊在行程很大時,為防止擦傷材料,可考慮在滑塊上加頂料銷(如圖(20)).

11 滑塊結構設計時要注意整個滑塊在運動過程中的平衡性.例圖(21)所示折彎,在底面孔很大影響滑塊運動的平衡時,可將滑塊加上頂料銷(或在滑塊/打板上對應處做出平台).



12 在設計滑塊上的避位時要注意滑塊的強度並考慮避位的加工工藝性,例圖(21)所示.在設計滑塊時除了要慎重考慮以上重點外,設計者還要根據具體情況去分析,