
建筑物均压环连接
均压环有很多分类,能作用于很多领域。按照用处的不同,均压环为防雷均压环,避雷器均压环,绝缘子均压环等;按照制作材料的不同又可以分为不锈钢均压环,铁质均压环,铝制均压环等。这里讨论的均压环是防雷均压环。
均压环,不难理解,主要是用来平均电压的,其原理就是将输入的高压平均分布到物体周围,从而各个环形之间不存在电位差。防雷均压环的原理也是如此,将建筑物顶部的接闪带,建筑物的钢筋等共同连接在一起而形成的法拉第笼,使笼内部的每处都收到保护,这对于防侧击雷十分有效。均压环的防雷的大致思路如下:将建筑物内的导体和墙体外敷设的金属线路和金属制物体等电位进行连接,并且一直连接到接地装置,从而将处于室内外的所有设施连接成一个大等势体,设备之间没有了电位差也就不会产生有害电流。

建筑物全部示意图
均压环如何安装呢?
建筑物均压环的安装在GB50057—2010中给出了具体的措施。当建筑物为钢筋混凝土结构的高层建筑物时,第一类建筑物的30M以上部分,第二类防雷建筑物的45M以上部分,第三类防雷建筑物的60M以上部分应装设均压环。第一类建筑物高于30M时,从30M起每隔不大于6M沿建筑物四周设均压环并与引下线相连;30M及以上外墙上的栏杆,门窗等较大的金属物应与防雷装置连接。第二,三类建筑物高于45M,60M的,其上部每隔建筑物高度的20%并在超过45米,60米的部位加装均压环,以防雷电侧击。外墙内,外竖直敷设的金属管道及金属的顶端和底端,应与防雷装置等电位联接。
在建筑物钢筋混凝土内的钢筋包括梁筋和柱筋,具有电气贯通性连接且上部与接闪器焊接,又与引下线可靠焊接的情况下,横向钢筋可作为均压环。
1,材料规格:钢筋或圆钢,仅为一根时,其直径应》10MM,利用混泥土构件内又箍筋连接的钢筋时,其截面积总和应》10MM钢筋的截面积。
2,环与柱主筋连接:检查有无均压环,有无与用作引下线的柱主筋全部连接,并使该高度及以上外墙上的栏杆,门,窗及大金属物与防雷设备相连。

均压环细节图
3,门窗环过渡电阻:检测门窗环的电气通路情况,可用低电阻测试仪检测,要求其过渡电阻R<0.03欧姆。
4,与竖直金属管连接:检查竖直敷设的金属管道及金属构件与环的连接情况,要求可靠焊接,其顶端和底端与防雷设备可靠连接。
5,环间间距:安装两个以上均压环时,环间间距不大于12M,一般为6M。
6,环间连接:与左右引下线,竖直敷设的金属管道,金属门窗等金属部件可靠连接。
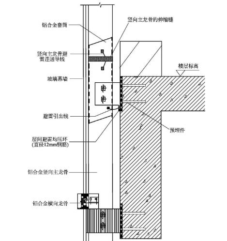
7,如果建筑物有玻璃幕墙的设计,应当在每一层敷设均压环。建筑物的玻璃幕墙应当可靠地合已经存在的均匀环,引下线等防雷设施进行电气连接。与此同时,在每一个幕墙预埋处的附近,均压环都要事先留好D》直径7的热镀锌圆钢以用来和幕墙的预埋金属相焊接。
对于圈梁内水平均压环,需要使用的钢筋之间连接,以及钢筋分别防雷引下线,金属门,窗,栏杆,扶手等金属不见的预埋件焊点不少于两处,与均压环预留的圆钢焊接成整体。铝制窗与避雷装置连接在加工订货铝制门窗时应按要求甩出30CM的铝带或扁钢两处,如超过3M,就要三处连接,以便进行压接或焊接。