项目:永嘉民宿
团队:姜佳杰 金成 朱晓敏
地点:温州永嘉
时间:2016
类型:民宿
状态:在建
工作内容:建筑设计
设计理念:业主希望有一个不一样的房子。这里将来会成为一个中档民宿,接待的人群包括来永嘉拍摄梯田的摄影师们、游客、家庭。一楼有时会成为乡里的人们摆酒席的场所。场地处于三面被包围(邻居住宅、山地)的处境。设计的策略是以一个天井为中心,展开周围的空间,为室内带来光线与活力。

场地现状

模型

东南透视

西南透视

一层平面图

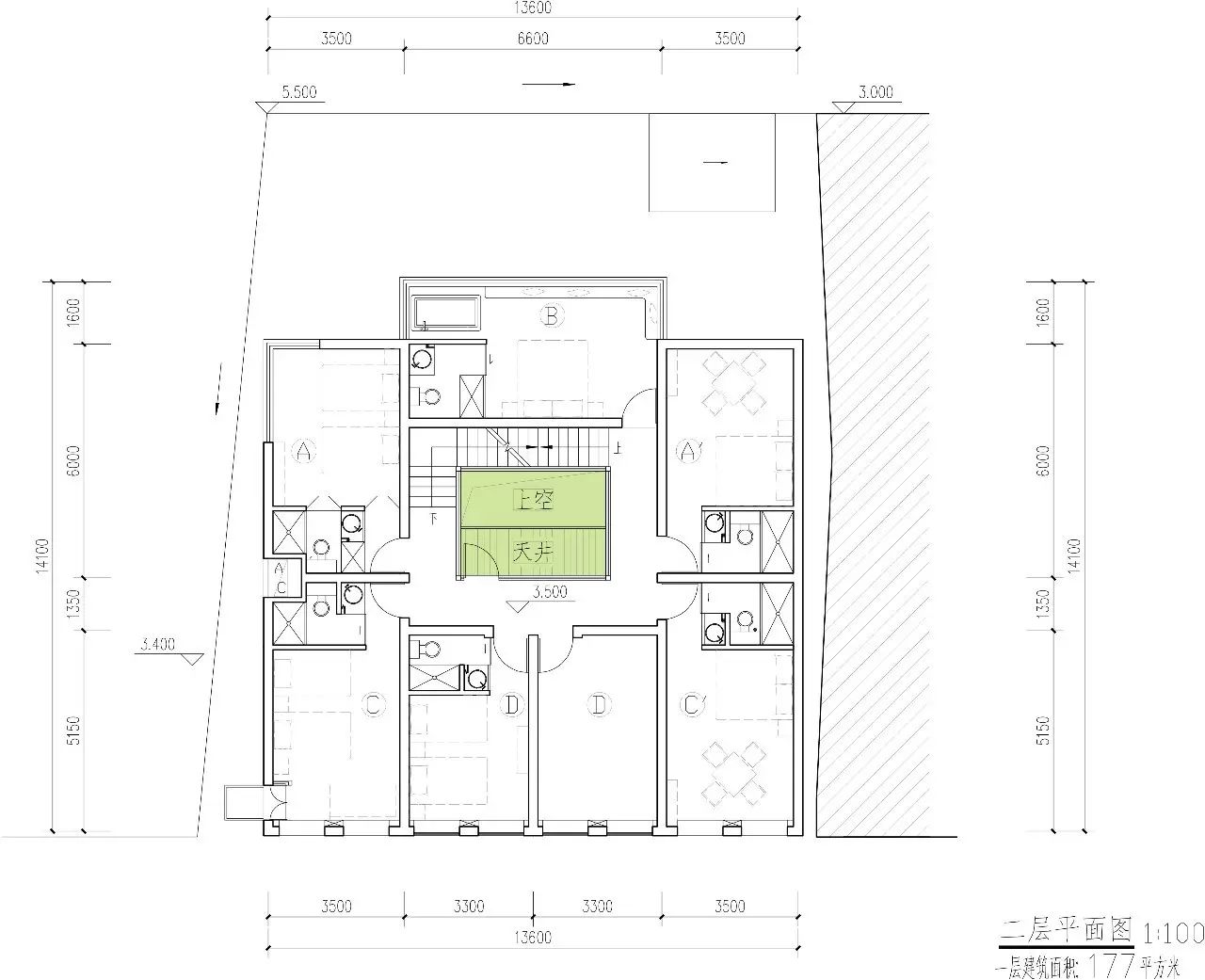
二层平面图

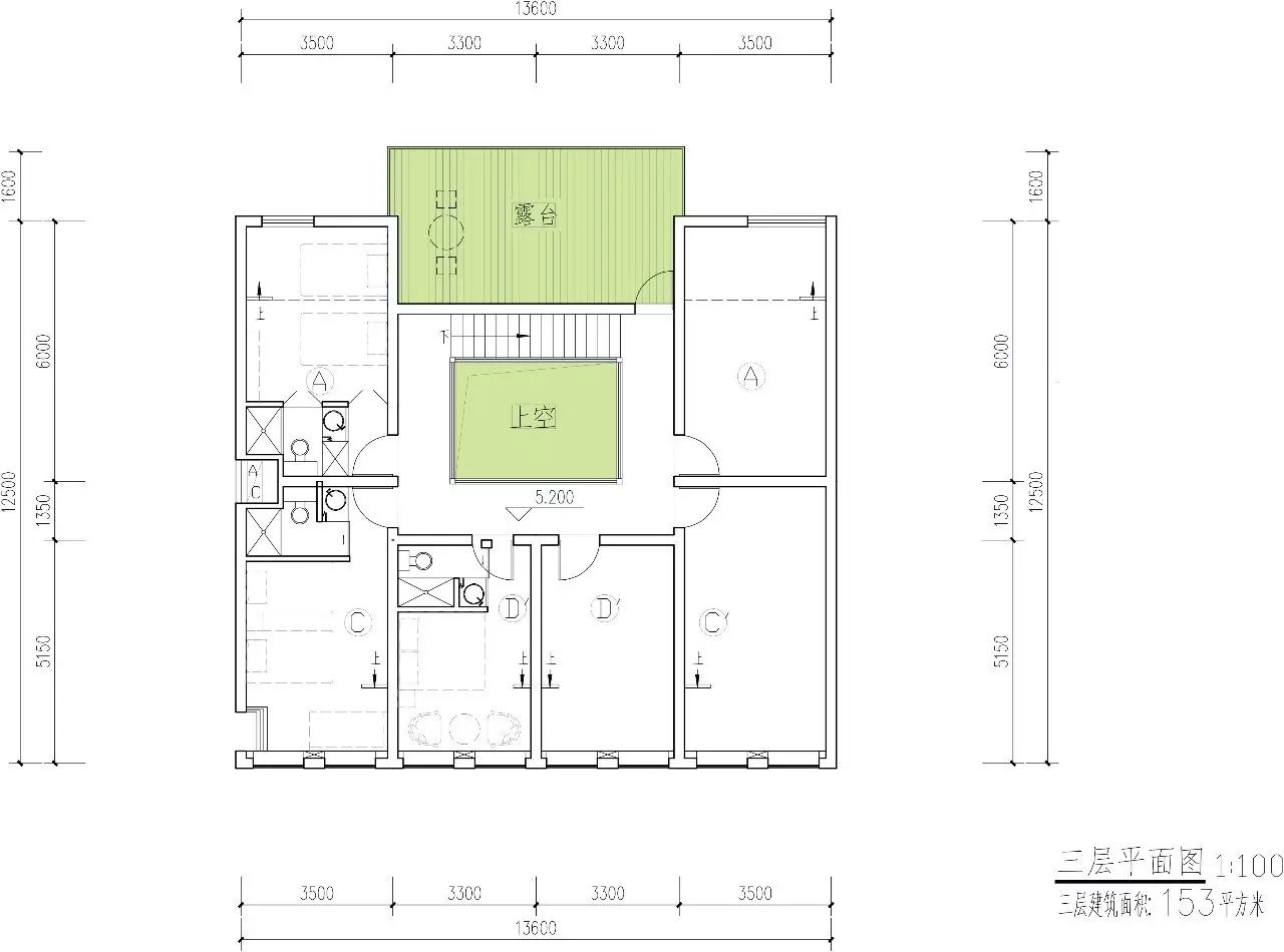
三层平面图

屋顶平面图

剖面图
一方间·文艺连萌|覆盖千万文艺生活实践者
接受有意义的建筑设计、室内设计项目的委托
http://zhuxiaomin.com 18058238225