今年7月,城南超级大盘黄龙溪谷对外释放了其标杆组团塔希提的产品信息,让业界和关注者充满了好奇。时隔4个月后,在众多期待之中,今日项目举行了盛大的媒体品鉴会,揭开了塔希提的神秘面纱。并正式公布,黄龙溪谷·塔希提将于12月2日开放实景样板岛。
随着实景样板岛的开放,“塔希提”也将有更加具象的表达:除了高达约2000万/栋的定价之外,其在建筑立面和室内空间的双重迭代,非标定制所带来的稀缺价值,或将引领墅居迭代新潮向。

【实景图】
1
大师团队操刀
或成为近十年“唯二”凭建筑出圈的项目
众所周知,建筑的立面,是奢宅最为显性的表达。
《建筑表皮》一书作者克里斯汀·史蒂西认为,随着材料技术的发展与创新应用,建筑表面越来越被视作建筑整体设计中一个重要的部分。
换而言之,建筑的立面,映射出一个项目、一座城市的性格。
在塔希提设计之初,黄龙溪谷不惜斥巨资,邀请到先后斩获德国IF设计大奖、英国Dezeen Awards设计大奖的GAD参与建筑设计。
值得一提的是,塔希提不仅是联袂知名设计机构,更是直接与“大师团队”合作,由GAD设计合伙人、设计总监吴彦亲自操刀。近期在设计届和社交媒体引发轰动的深圳湾超级总部基地住宅项目方案,正是出自吴彦之手。
一个细节就足以看出塔希提在建筑上的创造性——为契合其地貌特征,体现其建筑质感。在全球寻找匹配的工艺用材后,最终呈现的HPC材质外立面,让塔希提成为国内率先在住宅领域使用HPC材质的项目。

【实景图】
塔希提在建筑上的突破想象,还远不止于此。门窗型材采用“皇家蓝卡”断桥隔热铝合金型,造价比市面常规产品高约4倍;外墙使用一体成型铝板,成本是涂料的约10倍;就连装饰格栅每平米造价也是同类产品约5-6倍。
有业内人士认为,实景呈现的塔希提样板岛是继麓湖之后,成都近十年内又一凭借建筑“出圈”的项目。
2
城南稀缺岛居
罕见以湖山为景观基底
审视当下奢宅项目的景观设计,一是已不甘于平面的空间营造;二是能够深刻理解场地精神,从泛泛的“风格化”趋向更为“定制化”。
这,正是黄龙溪谷长达12年的坚持。
占地约5000亩的黄龙溪谷,以原生山谷、水系与植被为基底,拥有30个湖泊、白尺飞瀑、百亩草坪等7大自然景观——论景观规模,论生态资源的多样性,论山水和居住的融合,在成都几乎难有对手,这也为城南再造第二座“私岛”奠定了基石。

【实景图】
要知道,从全球奢宅市场来看,纽约长岛,到迪拜棕榈岛、巴黎西岱岛,世界版图上的城市岛居无一不是塔尖生活的代名词。
聚焦至全新推出的塔希提,容积率仅约1.176,更是占据千亩溪谷内原生的五羊湖和雁归湖资源,并借势地形的层叠而上,让每户皆被溪谷和景观环抱。
已有15年造景经验的山水比德,在塔希提的景观中便以法国画家高更的画作为灵感,结合东方山水人文意向,串联起“登高、望远、林游、峡谷、花间”五大主题,又在五大主题中定制了“林间书吧、树梢乐园、森林戏水池、滴水洞茶室、崖边发呆亭、漂浮花园、疗愈花园、悬空泳池、湖畔健身厅、电梯观景台”等十大景观。

【实景图】
这样一来,在塔希提,建筑融入景观,景观融入山水,山水融入生活。
3
何为塔希提
于溪谷中保持松弛感
何为,“塔希提”?
从地理维度来看,是位于南太平洋上的岛屿,被誉为“更接近天堂的地方”。
从艺术维度来看,法国画家高更,享誉世界的代表作,几乎都在塔希提完成,更在塔希提生活笔记中写下,“我变得和动物一样自由自在”。高更之后,英国作家毛姆也踏上了塔希提,并据此创造出名作《月亮和六便士》。
塔希提,至此成为一种追寻自然之美、生活之美的符号。
在快节奏的都市生活中,什么最珍贵?都市菁英的答案是:松弛感。
低密、自然、度假、放空,几乎没有一位菁英人群不对此向往,而这些在当前的城南唯有黄龙溪谷能够提供。

【实景图】
塔希提除了拥有先锋的产品之外,更将菁英人群的喜好和生活态度外化进居住的地方,让奢宅既有外在之美,又有足够的内在居住价值,从而升华对生活的热爱。
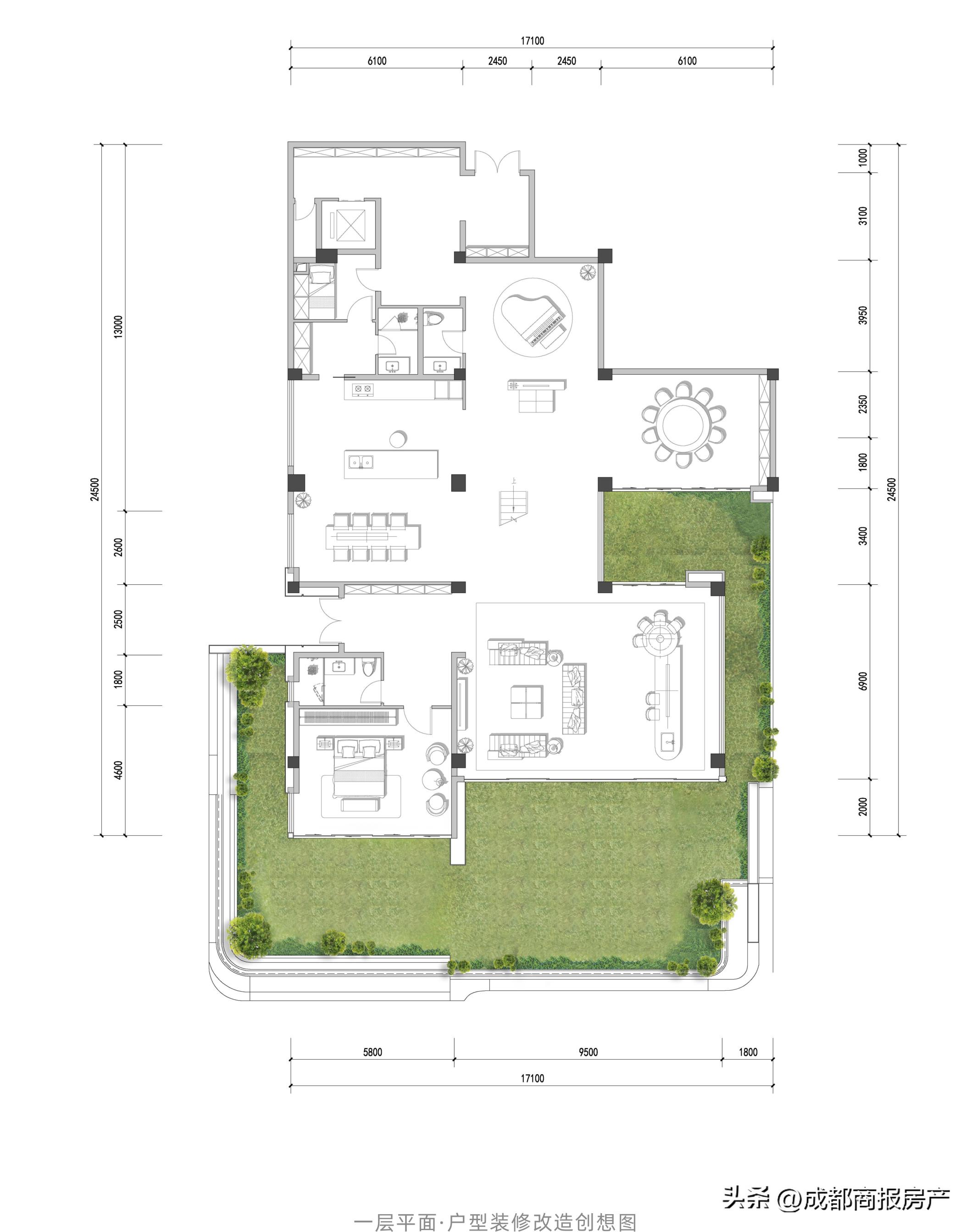
依据岛屿地形,整个塔希提包含了漂浮之岛、森林之帆、湖山之境、陆地之舟、天空之翼四大产品形态。此次实景开放展示的便是其两大主力产品——湖山之境·花园墅与陆地之舟•天空墅。

【实景图】
建面约363㎡湖山之境·花园墅,独享约200㎡临湖庭院,预留泳池条件,带来头等舱级阔绰尺度;约50㎡超大双层挑高尺度,打造无距共享的家庭互动磁场。


建面约265㎡的陆地之舟•天空墅,拥有超大环绕式屋顶花园;270°全景观湖露台,大尺度LDK餐客厅和双豪华套房主卧。
前者为两叠组团,打造层层退台观湖的生活体验;后者立于整岛的高点,凭借自然台地高差,让业主畅享湖景视野。这样一来,在这里,没有开不完的会,只有湖边天空中静谧的云卷云舒,和院子里的花开花落。
随着实景样板岛开放在即,塔希提的意义也有了明确指向——引领成都墅居迭代新潮向!