
我们做的不是设计
我们做的是时尚生活的搬运工
小编QQ:762617855 微信:AXQ-0428
保利垄上— 雅韵
家,情感表达的地方……
浸润着优雅与自然,沉淀着经典与气质
线条流畅,尺度适宜
灰阶色彩涂装,满满的和谐融洽
木色与布艺的搭接,经典、自然、优雅
期许您细细品味……
平面布局

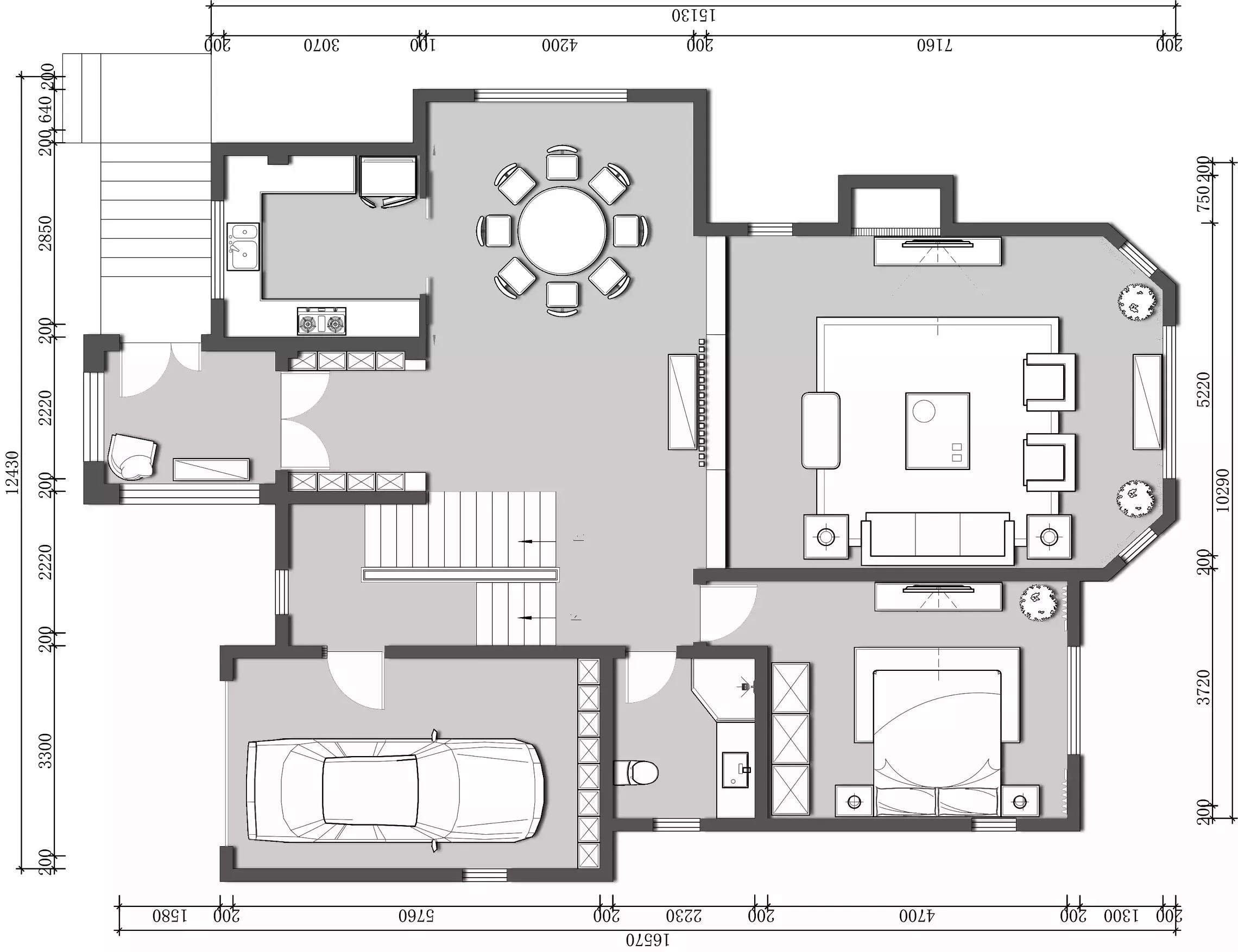
▲一层平面布局

▲二层平面布局

▲地下一层平面布局
方案展示

▲
设计主题

▲
材质分析

▲
客厅配饰方案

▲
餐厅配饰方案
效果图
◆◆展示

客厅
待客和朋友聚会的场所,设计师加入了一些金属材质,简单中稍显贵气。

餐厅
设计师在金属材质上的拿捏极为准确,门厅处的金属玄关“瀑布”中流露出精致二字,搭配上现代沙发,整个餐厅空间简约又不简单。

卧室
主卧与书房是业主的私人空间,水墨和青竹元素出现在空间中,儒雅气质显露无疑。

次卧
原木色和素雅的蓝色搭配,满满的和谐融洽,木色与布艺的搭接,经典、自然、优雅。


书房
本案以区域明亮为原则,灯光以点的形式出现,用落地灯和台灯营造氛围再合适不过。

卫生间
材质的选择、颜色的搭配都给人以明净感,主题色调以咖色为主,适当的用一些浅色做补充。合理的收纳,方便又不占空间。玻璃门镜面反光,使得整个空间看起来非常大。



地下室
整体空间以木色搭配灰色,非常雅致。精致的工艺品加以点缀,更具有文化韵味和独特风格。局部空间的绿植点缀,为空间增加亮点。

刘磊
现任尚层装饰(北京)有限公司 设计总监
拥有以“三石堂”命名的专业创作室
毕业于中央工艺美术学院 室内设计专业
进修于 米兰理工大学 和 清华大学
拥有15年高端室内设计 工作经验

刘磊
现任尚层装饰(北京)有限公司 设计总监
拥有以“三石堂”命名的专业创作室
毕业于中央工艺美术学院 室内设计专业
进修于 米兰理工大学 和 清华大学
拥有15年高端室内设计 工作经验

刘磊
现任尚层装饰(北京)有限公司 设计总监
拥有以“三石堂”命名的专业创作室
毕业于中央工艺美术学院 室内设计专业
进修于 米兰理工大学 和 清华大学
拥有15年高端室内设计 工作经验

深化设计师 芮轩
“三石堂”工作室深化设计师
进修于清华大学室内设计专业
中国建筑装饰协会会员
倡导温暖设计,拥有5年高端室内设计工作室经验

▲
刘磊老师和他的设计团队
我们做的不是设计
我们做的是时尚生活的搬运工
小编QQ:762617855 微信:AXQ-0428
了解更多请关注小编 微信公众号【室内装修设计网】
实时跟新百套作品案例......
报名链接:http://weixin.shangceng.com.cn/party/ky0300.aspx
官网:http://www.xj11070620.icoc.me/