设计空间 | 书画艺术 | 生活美学
喜欢设计进入抖音号 “ 空间设计 ” → 看视频版“ 点个关注 + ”
空间设计出品┃转载请注明来源
来源:空间设计(ID:kongjiansheji88)
别墅设计

每天给你分享一个案例设计
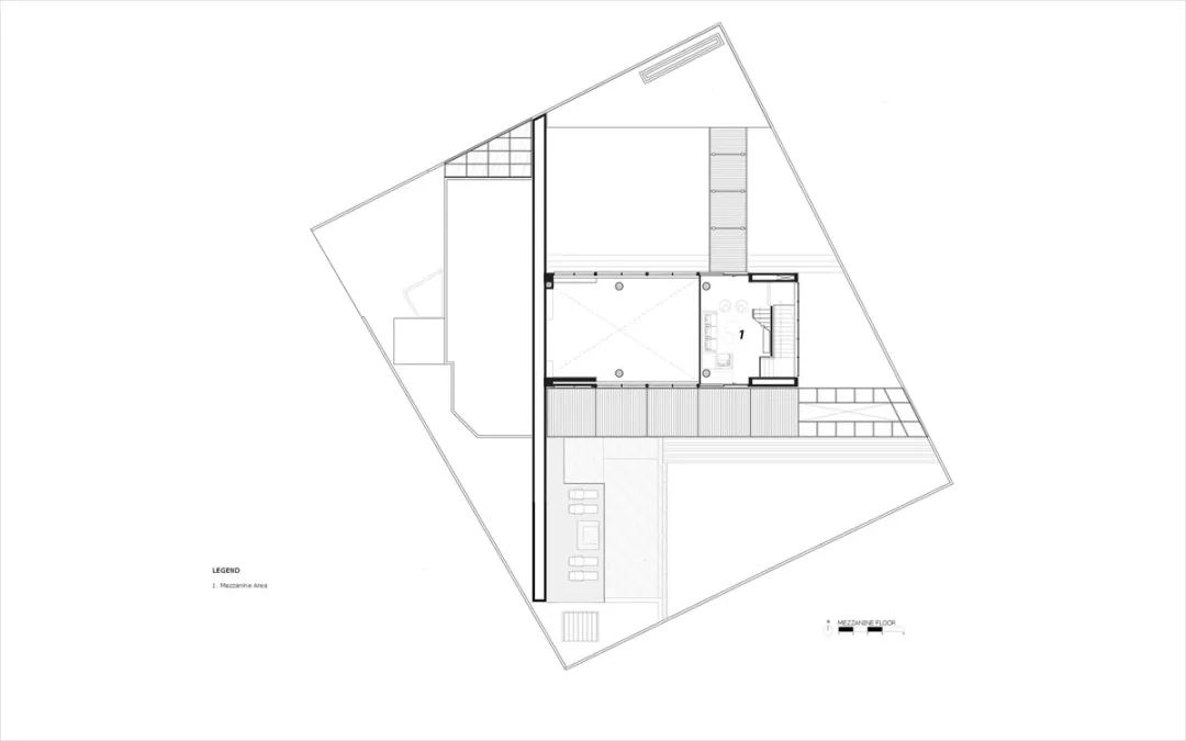
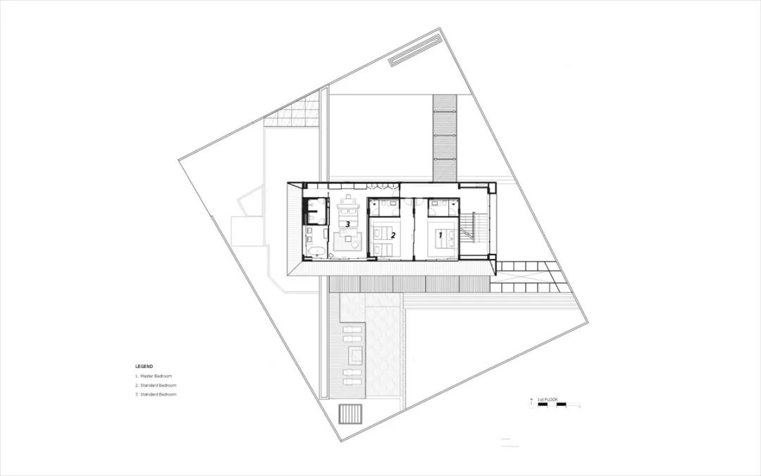
这套住宅 面积: 550㎡ (套内)
由 Arkana Architect 设计


进入 Cumulus Villa
这是一栋位于印度尼西亚巴厘岛南库塔现代热带别墅
这座令人惊叹的家庭别墅
拥有令人难以置信的宽敞内部布局和宽敞的外部起居空间
将建筑包围在郁郁葱葱的绿色植物中,为您提供远离尘世的喧嚣
独特的对角线结构带来更宽敞的起居、就餐和厨房区域
营造出通风良好的放松和娱乐环境
别墅的生活与户外和谐地融为一体
将日常生活与花园里令人振奋的自然美景融为一体
或者在游泳池、凉亭或树屋闲逛时
河石墙给现代别墅带来了永恒的感觉
并赋予了室内外美妙的个性

1.外观设计
现代住宅的外观在印度尼西亚巴厘岛
清澈的蓝天的映衬下呈现出线性的美感
双层住宅的第二层由温暖的木质覆层定义
营造出引人注目的环绕效果
一座河石塔赋予建筑一种强大的力量
这种力量遍布建筑的脚部
到了晚上,别墅里外都在精心设计的照明方案下闪闪发光
明亮的露台适合晚上聚会



2.客厅设计
客厅位于下层的中间
花园景观从两侧进入,营造出宁静的放松空间
双重方面还允许房主重新构想
他们的室内布局以面向任一方向
滑动玻璃门将起居空间与两个花园连接起来
并将它们完美地连接在一起
当门被拉开时,一阵舒缓的微风吹过
家庭配有智能家居系统
业主不在巴厘岛时可以通过智能*机监手**控别墅


豪华别墅内的家具现代而舒适
色彩缤纷的小饰品和室内植物
增强了以中性为主的配色方案



3.餐厨设计




双高客厅设有夹层
房主可以从夹层楼以及屋顶露台上
直接欣赏美乐思海滩的景色
4.花园设计

从底层爬升到屋顶的垂直石头体积形成了别墅流通的核心
成堆的河石将楼梯围在里面
一条有遮蔽的走道穿过花园
绿色景观在两侧展开
草坪庭院设计为孩子们
提供了安全、平坦的跑步和玩耍场所
成熟的树木增加了高度和形状



5.卧室设计
楼上的玻璃卧室可以欣赏到街道和远处的美景
激光切割的积云窗纱是房主的艺术品
它通过精致的细节墙提升了宁静的卧室装饰方案
当阳光照射进来时
错综复杂的窗纱设计会产生美妙的光影效果
滑动门将卧室与豪华套间浴室连接起来
独立式浴缸周围环绕着美丽的绿色景观





6.楼梯设计


7.泳池设计










看到这里还意犹未尽?别担心
更多精彩内容 进入抖音号 “ 空间设计 ”
记得帮我 点个关注 + ,以示鼓励,谢谢!