


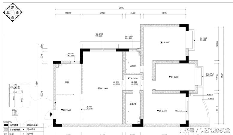
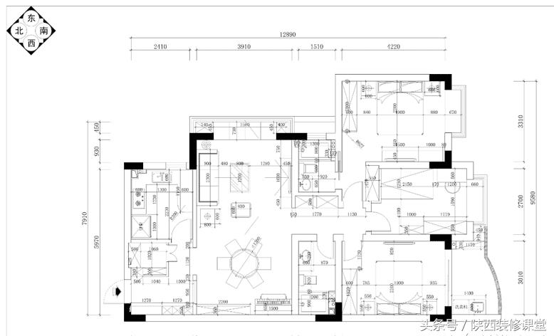
户型:三室两厅
建筑面积:138平方
装修方式:半包
装修风格:简美
家、是一个人遮风避雨的港湾,
家、有父母的慈爱、家庭的温暖,
家、是幸福和快乐的,
家、是温馨和甜蜜的,
家是美好的,有爱才有家、有家就有爱。
家,在我心里,一定是温暖的,宁静的,舒适的,随意的。


我家于2016年10月下旬开工,中间经历了春节,于2016年5月完工。应该说从设计到装修,除了中间因为瓷砖的问题耽误了些工期外,整个装修进程还是比较顺利的。在这里,我除了要感谢我的设计师晓妍,还要特别感谢负责我家装修项目的项目经理王工,他真的是一个特别难得的项目经理,整个接触下来,他给我的感觉就是,话不多,事情做的很到位,很多时候我没想到的他都能替我想到,所以这点我也是幸运的。
对于装修,我的感受就是,好的设计师和好的项目经理都特别重要。

























更多案例搜【西安装修课堂】关注