

你有没有碰到过喜欢不太平常风格的客户,当你听到那些风格有没有觉得很难搞?风格有很多种,作为一名设计师,就必须对各种风格有足够多的掌握,抓住风格打造要点,充分展现空间的风格特色。

设计师在做平面方案时,就要对整个风格的体现有基本的考虑,有的甚至在平面上就已经能展现出部分效果了,这是设计师设计能力的一种体现。优秀的设计师对不同方案不同风格空间的打造手到擒来,今天我们就一起来看看几种室内设计风格。

01- 极简

随着人们生活品质和审美的提高,有质感、做减法的极简风越来越受到人们的青睐。极简主义主张减少创作设计的步骤,在室内留下足够的“灰空间”,力求从视觉感官上体现简约与纯粹。


想要打造有质感的极简风空间,就得摒弃无用的装饰,化简为繁。同时,极简风在配色上不要选择过于跳脱的颜色,也不要使用过多的颜色来进行搭配。


02- 法式

图源:进化美业
尽显优雅气质的法式风格,配色常以白、金或深色的木色为主调。在布局上,突出轴线的对称,细节的处理上常使用法式廊柱、雕花、线条等。


图源:进化美业
秉持典型的法式风格搭配原则,家具多为浅色,略带雕花,配合椅腿的弧形曲度,显得优雅矜贵,在水晶吊灯的搭配下,浪漫清新之感扑面而来。


图源:进化美业
03- 台式

说起台式风格你会想起谁?小编第一个想到的就是唐忠汉,他被称为“台式风格”设计的代表人物。台式风格并不采用复杂的雕饰或镂空设计,大气又温和。


比起装饰的堆砌,台式更注重质感,没有杂乱的颜色,质朴自然的台式设计融合现代美学理念,营造出一种高雅的生活氛围。


简洁和实用是台式风格的基本特点,同时通过光影、材质、细节来展现质感和营造氛围。


以上只是室内风格的其中三种,作为设计师不说样样精通但也必须有一定的了解。所以这里小编为你准备了14种家装风格超全合集,带你了解各类室内风格设计,让你不再为风格的打造而发愁。
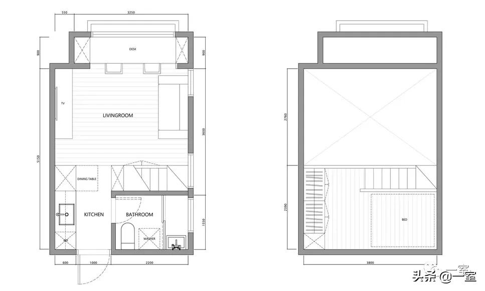
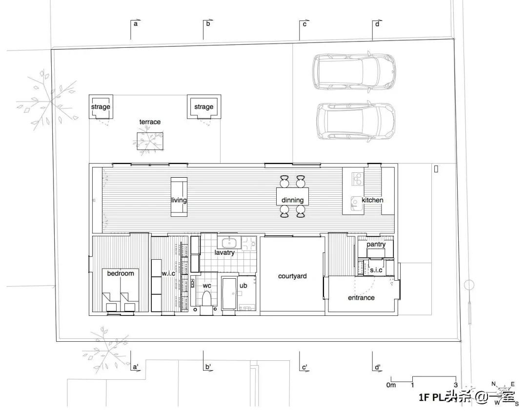
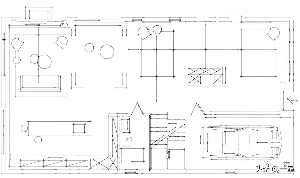
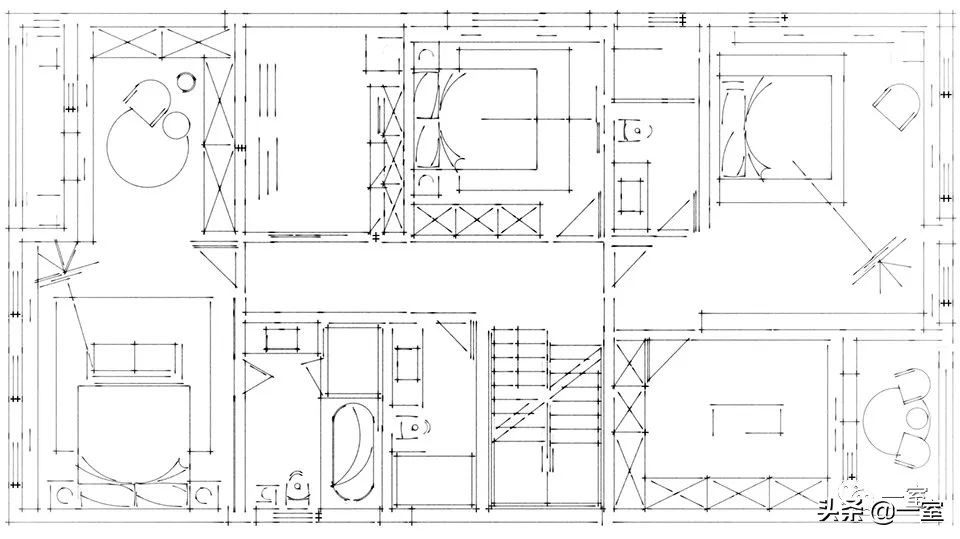
14种家装风格超全合集
其中部分有平面图,共23.7GB
资料总预览
【01】现代 【02】中式新中式
【03】日式 【04】台式港式
【05】欧式 【06】美式
【07】极简 【08】法式
【09】轻奢 【10】复式loft
【11】古典 【12】后现代
【13】混搭 【14】田园地中海
现代
-1-






-2-









中式新中式
-1-






-2-





-3-






日式
-1-






-2-






台式港式
-1-





欧式
-1-





-2-






美式
-1-










-2-









极简
-1-








-2-






法式
-1-







-2-






轻奢
-1-






-2-








复式LOFT
-1-








-2-








▲以上仅为部分展示
【免费领取】关注+转发 后 私信“素材”
版权声明:我们尊重原创。文字美图素材,版权属于原作者。部分文章推送时因种种原因未能与原作者联系上,若涉及版权问题,敬请原作者联系我们,立即处理。