朝阳区将新建一批优质学校 (朝阳区教育潜力)

朝阳城芯之上再添教育利好!朝阳区家长期待已久的朝阳学校正在重建中!放眼看这所学校,萦绕在繁华中,生活极尽利好。

除此之外,城芯教育资源,正可谓占据了天时地利人和。仅是朝阳区,就汇聚了23所中小学,比如朝阳实验学校、长春二中等等,说是名校扎堆,完全不夸张。好的教育氛围,对孩子的成长可是起到了关键性的作用。

生活中总能听到,居所有价,教育无价,孩子的事,是一个家庭的大事。给孩子一个好的成长环境,凭借地理优势,为孩子提供优质便捷的教育资源是现在大多数家长购房者,首要关注的焦点,城市千万房,不如名校在家旁。

显而易见,环境对于孩子读书习惯的养成起到十分关键的促进作用,孟母之所以多次搬家,有一个最重要的原因是,优质的教育资源十分稀缺,倘若一开始就选择一所墨香四溢,文化浓厚的好住所,能做到“谈笑有鸿儒,往来无白丁”,又何必煞费苦心地四处搬迁呢?

而身居在朝阳城芯的家长,面对正在重建的朝阳学校,内心激动更是满溢于屏。

朝阳区将新建一批优质学校,朝阳区教育潜力

长春朝阳学校新建项目效果图

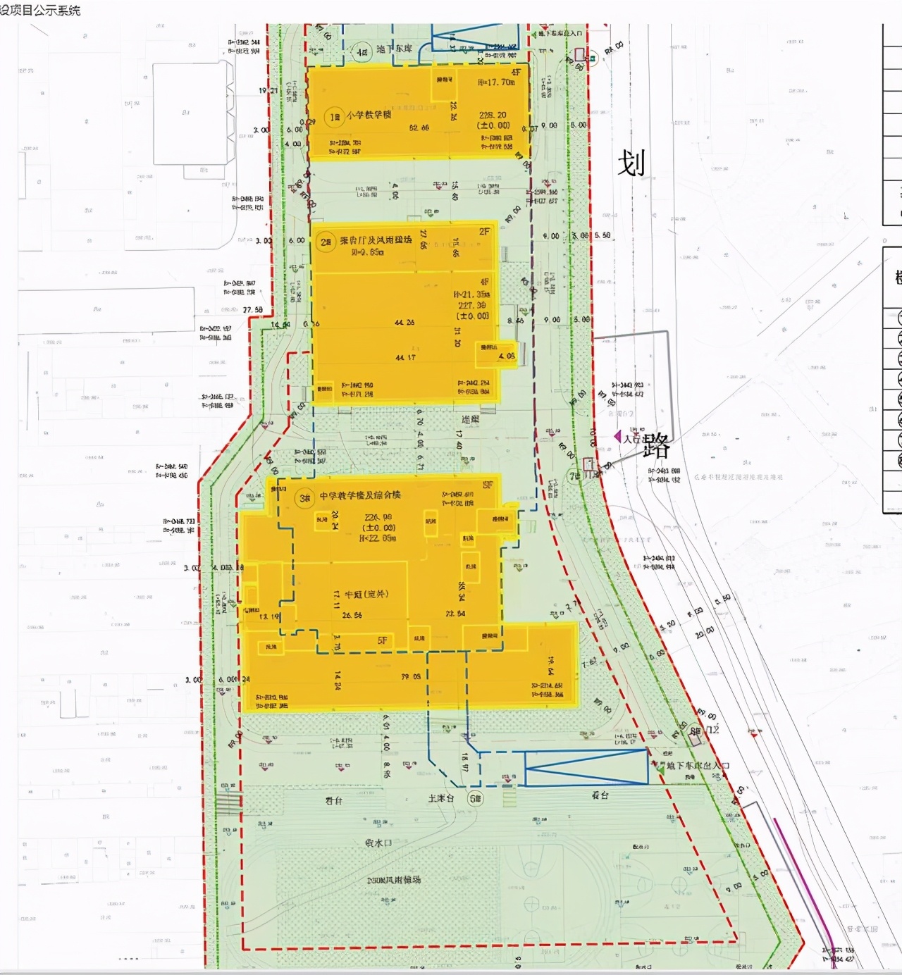
根据规划内容显示,长春市朝阳学校新建项目位于前进西街以东,湖光路以南,繁荣北路以北。规划建设中小学教学楼、报告厅和风雨操场等。占地面积2.4万平方米,建筑面积3.4万平方米,总投资1.3亿元,计划开/竣工日期从2020年10月15日至2023年04月15日。将在原校址上改扩建,曾经占地只有7000多平方米,此次将扩建到1.7万平方米,将建设3栋教学楼,规划45个教学班,其中小学30班,中学15班。这所学校很多家长还是非常关注的,而且学校北侧即将进行10多万平方米的征收,可以肯定未来学校所在的这片区域也将形成一个全新的潜力片区。

尤其是学校的雄厚师资力量,不容忽视。现有国家级科研骨干教师1人,吉林省科研骨干校长2人,省级科研骨干教师5人,省生命教育科研骨干1人,长春市骨干校长1人,长春市专家型校长1人,长春市骨干教师2人,长春市科研骨干教师2人,长春市“平安校园”创建工作先进个人1人,朝阳区名师3人,区学科优秀教师7人,区科研骨干教师3人,校级学科优秀教师7人。

学校荣誉也是响当当,学校先后被评为吉林省基础教育校本科研基地校、吉林省“十二五”科研先进单位、吉林省校本教研先进单位、长春市精神文明先进单位、长春市校务公开民主管理示范单位、朝阳区义务教育规范学校、吉林省教育信息科学技术装备先进校、中华传统美德教育研究“百佳示范校”、长春市创建全国文明城未成年人思想道德建设工作测评先进集体、科技比赛优秀组织单位、长春市“花园式学校”、长春市“平安校园”示范校、长春市文化校园示范校、长春市青少年篮球突出贡献单位、全国旱地冰球实验学校,多次获得朝阳区教学成果奖。

朝阳区将新建一批优质学校,朝阳区教育潜力

长春朝阳学校新建项目规划图

城市中中芯的学区房,毋庸置疑,楼市中的常青树,也是年轻的爸爸妈妈们头疼却又绕不开的购置计划。而朝阳学校,作为朝阳区唯一一所九年一贯制学校。未来必将承载更多的教育希望,其优势不言而喻。

因为,优质的九年一贯制学校,幼升小后免了小升初的麻烦,“省心“。这也是近来九年一贯制学区房看涨的原因。相比“6+3”中小学模式,九年一贯制从教育规律上来说更为稳定,能有效衔接中小学教育资源,有利于教育均衡发展,这也是国家近年来大力推行九年一贯制学校的主要原因,同时,它也是教育改革的大势所趋。

九年都就读同一个学校,老师更方便针对每个学生、规划建立个性化的档案和教育方式,连贯学生的成长。但对于家长来说,“一劳九年逸”的优势太明显,优质的九年制学校成为了家长们的心头好,对应的学区房价格上涨也是意料之中。

因此,家住名校旁,给孩子一个安稳舒适的学习环境,与各大名师益友互动交流,接受最优质的教育资源,是每个家长的心声。我们可以设想,朝阳区的教育“潜力股”,未来必将不断释放光芒,不断吸引对教育有高标准要求的家庭,成为长春惹人注目的教育之选。