装修从来不是材料的堆砌,而是讲究设计,颜色搭配和材料选择,每一个环节都很重要。每一个步骤做好,才能成就一套不错的家居装修。这期案例是一套小户型刚需住房,套内面积82㎡,“2+1”的格局设计,满足一家三口居住之余,还拥有独立衣帽间,整体简约活泼,一起看看效果。

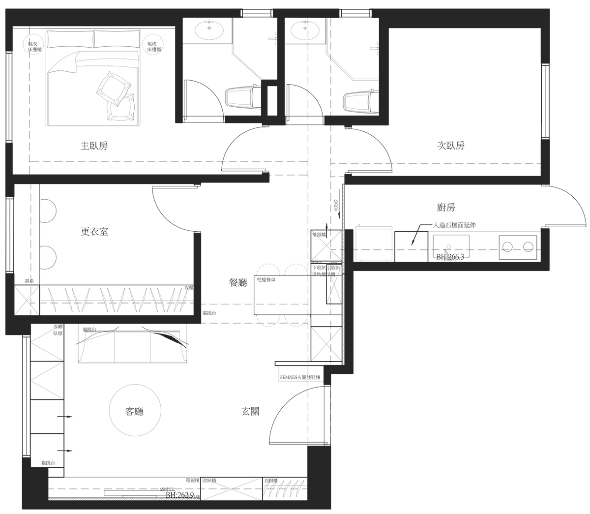
装修平面图

套内面积82㎡,两房两厅两卫,还带一个衣帽间。户型中规中矩,整体格局还不错,为了保有客厅的开阔感,将餐厅置于过道。
玄关设计

玄关没有压得喘不过气的连排储物柜,简洁通透也不缺收纳。翻斗式鞋柜紧贴墙面,满足了鞋履的收纳,同时也补齐了空间,让视觉感更和谐。
底部采用悬空方式,减轻柜体体量,放缓空间紧凑感。不仅可以摆放日常更换的鞋子,也有利于日常的卫生清洁。
客厅设计

客厅电视墙,看似简单的设计,却有着自己的特色。木纹搭佐明黄色,展开明快节奏的电视墙。柜子跳脱单纯的收纳设定,凿空层板串起猫道路径,是猫咪登高踏阶和高处木质猫窝。

沙发墙采用上下分色设计,奶茶灰与纯白结合,拉伸出空间层次感。下半部分采用白色,主要是降低维护难度。

两座小沙发,看似不够用,但辅助地台设计,足以满足日常使用。轻巧的组合式茶几,移动方便,为客厅腾出足够的活动空间。
餐厅设计

为了更开阔的客厅空间,将餐厅布置在过道位置,伸缩式的餐桌设计,可以根据需求自由切换,确*过保**道空间的通畅。

两侧高柜设计,弥补了厨房收纳空间的不足。电器柜转向厨房动线上,方便日常使用。水泥灰质感的柜体,与线性灯结合,效果还是挺高级的。
主卧设计

主卧优雅轻快,依旧是白色为主,不同于客厅加入了孔雀石绿,以线板的形式落于床头,成为主视觉。拥有单独的衣帽间,主卧放弃了衣柜设计,但以箱床强化了部分收纳需求,确保主卧的整洁。

洁白的墙面上,安装了一些挂钩,不仅解决了衣物收纳问题,也让衣帽成为卧室的一道装饰风景。
衣帽间设计

单独的衣帽间,连排的置顶储物柜设计,涵盖了一家人的衣物收纳,靠窗位置设置了部分展示区,方便摆放书籍和其他物品。
简单的梳妆台设计,满足女主梳妆需求,也可以是简易书桌,居家办公也不是问题。
次卧设计

次卧,未来的儿童房,装修比较简单有活力,活动式家具搭配留白设计,给予后期更弹性可变的空间。
湖水蓝推开腰墙高度,圆润弧角造型,展开不对称的视觉感,带点童趣和俏皮感的装饰品,让空间更有童趣。

以上就是这期案例分享,小小的空间满足了一家三口的生活需求。不仅拥有足够宽松的活动空间,还有独立的衣帽间,对于小户型来说,已经很不错了。此外,还有活泼的色彩搭配,让居家空间更有活力感。