【室内设计胶囊】

设计师都很清楚,平面布局是室内设计的灵魂,把室内设计比作一个国家的话,那么平面布局是文化,有了好的平面,好的设计才有根基。作为设计师,最让人头痛的部分也是平面,因为平面的可能性太多,好方案与差方案有着千差万别,然后,业主也越来越专业,越来越明白平面布局的重要性,因此,对设计师提出更高要求,也由此衍生出一个新的领域:平面优化。今天就跟大家聊聊平面优化,到底要怎么玩。
一.不做搬家师
设计师是空间整体解决方案提供者,而很多所谓设计师,只是在完成“搬家具”工作,平面布局只会从CAD家具图库里搬到图里,既不会考虑尺度,还会忽略功能问题,做效果图更是如此,平面布局都没做完,就去3D里建模了,然后一个一个的家具模型从库里粘贴到场景里....
搬家师是护士,设计师是代夫!
搬家师只是把家具从自己的图库里挪到了平面图里。甚至连尺寸比例是否合适都没顾上调整,业主说我想在客厅放一个鱼缸,搬家师又从CAD图库里调一个鱼缸放到客厅里,是不是很像护士,你要什么我给您搬过来,但设计师不一样,设计师如同代夫,他会先把脉,问诊,全面了解您的情况和需求,并强烈建议您剔除掉一些不合理的想法,如果平面本身存在不合理,设计师会先给您做优化,保证空间利用充分,功能合理,最后才去布置家具,布置家具很多时候是自己临时画,因为很多图库里的图块并不合适您的房子。
先看”搬家师”做的平面布局“
一般来说,搬家师不会对房屋不合理地方进行调整和优化,甚至连搬进去的家具大小是否合适,方位是否合理都没有分析。

下面是布置完的平面图,完全看不到人性化的设计,客厅的沙发直接从图库中调入,实际上已经严重挡住去阳台的路了,他会无视这点,继续看卧室,客户说我需要一个双人床,把他逼急了,直接放在了窗下。。。

再看一套常见的搬家师做设计的方式,也许是业主只想看效果图,也可能是设计师本身不重视平面布局,这个平面只是半成品就交活了,一个平面图没有研究充分的设计你敢用吗?效果图再好看能代替最后装修出来的效果?


如果你还想人家称呼你“设计师”,请认真对待平面布局,一个成功的平面布局是项目成败的关键。
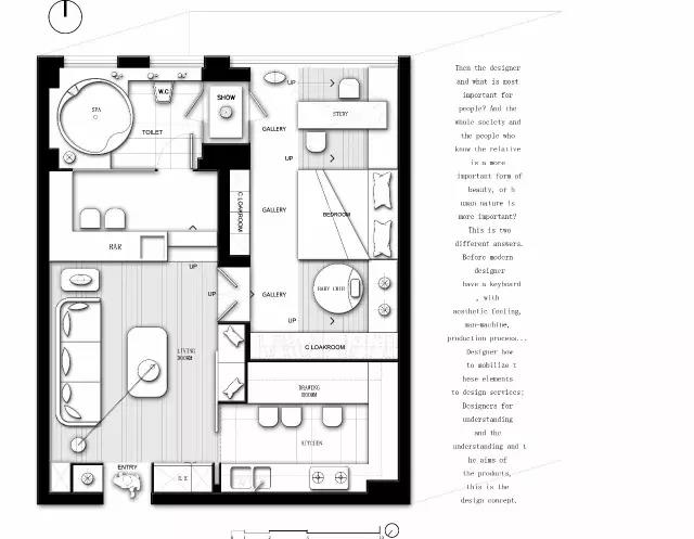
再看设计师做的平面布局


设计师会先熟悉户型情况,居住成员等等,反复推敲和研究方案,或许您看到这版方案是他想出的10多套方案之一。并不是简单的把家具搬进去,而是考虑采光,通风,功能,收纳等因素。如果您觉得这个平面还不够有创意,胶囊君再分享几个平面布置:




二.平面布局设计流程
1.收集业主需求,分析户型优缺点,找到切入点
▼
切入点就是可能业主最关注的点,或者你认为此户型你能想到最打动客户的地方。比如业主想要改两居为三居,你想到一个妙招。

2.需求进行分区划定
▼
最简单的方法是在原始结构图基础上划出房间布局。

这里啰嗦一句:划定大格局之后,可以确定室内轴线的位置,注意,这不是建筑结构的轴线,是你用来定位家具和空间的轴线,这有利于帮你做出更有对位关系,更流畅的动线。如下图。

红色既为轴线,一般用虚线来表示。
下面这个图里也有轴线,大家仔细就可以看出。
3.进行细节设计
包括局部细化,家具布置等等
▼

4.做图面美化
这是表现技法的部分了,墙线加粗,地面填充等。
▼

5.继续美化
更换色调,调整图面对比度,收拾图面。
▼

6.收尾
木地板表现,进一步刻画等等。
▼

三.平面布局技巧
平面布局是室内设计的第一步,也是最重要的一步。平面布局的设计,关联着室内空间的六个面,只有当六面保持着整体性,连贯性,通透性;只有当室内轮廓线条与外界的环境相适应时;只有当室内的各个空间的颜色相互协调,又与当时的环境相呼应时,我们才能够更好的表达室内的主题。
1、对位与均衡 原则要点:对位是指平面中所有的构件,墙体,家具的对位关系,能对齐的尽量对齐,新手常犯的错误也在这里,所以空间显得凌乱。 均衡是平面布局的一大原则,讲究的是空间布局的匀称,避免出现那边很拥挤,那边很空荡。
应用技巧:对位可以是居中对位也可以是居左或者居右,但对位要讲究,不可不考虑,会让人感觉空间不简练,动线不流畅。

图中的虚线基本都是对位辅助线

平面布局不均衡的例子,左松右紧,上松下紧
2、比例与尺度 原则要点:圣奥古斯丁说:“美是各部分的适当比例,再加一种悦目的颜色。”比例是物与物的相比,表明各种相对面间的相对度量关系,在美学中,最经典的比例分配莫过于“黄金分割”了;尺度是物与人(或其他易识别的不变要素)之间相比,不需涉及具体尺寸,完全凭感觉上的印象来把握。 应用技巧:比例是理性的、具体的,尺度是感性的、抽象的。如果你没有特别的偏好,不妨就用1:0.618的完美比例来划居室空间吧,这会是一个非常讨巧的办法。例如这间根据“比例与尺度”原则营建的院落。墙体、窗户的长宽比例符合黄金分割。梯形棚架与长条桌的相似,在一定尺度上改善了空间距离,让窗外的景色仿佛近了许多。

本可以摆放大一号的家具,比如沙发,却选择错了,让空间显得小气
3、主从与重点 原则要点:当主角和配角关系很明确时,心理也会安定下来。如果两者的关系模糊,便会令人无所适从,所以主从关系是家居布置中需要考虑的基本因素之一。在居室装饰中,视觉中心是极其重要的,人的注意范围一定要有一个中心点,这样才能造成主次分明的层次美感,这个视觉中心就是布置上的重点。 应用技巧:明确地表示出主从关系是很正统的布局方法;对某一部分的强调,可打破全局的单调感,使整个居室变得有朝气。但视觉中心有一个就足够了,就如一颗石子丢进平静的水面,产生一波一波的涟漪,自会惹人遐思。这间客厅的“石子”就是那个花枝招展、流光溢彩、独一无二的吊灯!如果多放一、两盏的话,整体美感就会荡然无存。

这个案例里的主卧室就很气派,其他空间就有弱化,这就是主次。