项目名称:北京西直门泊寓
位置:北京
设计公司:盛哲建筑设计

在城市里,耀眼的建筑如舞台上的“主演”一样吸引大家的眼球,而那些不起眼却又会与我们每天不期而遇的“群众演员”建筑,往往更大程度上构成了我们的城市,影响了我们的生活。在北京,这些建筑多建于近几十年,其中有很大一部分已经不再符合城市发展的需要,并面临着功能和结构改造的需要。更大范围的城市更新逐渐成为建筑师新的课题。
此次项目的业主万科作为城市生活的服务商,近年来也将城市更新作为在北京的一个重要关注点,其中自然包含大量与我们生活息息相关的老旧“群众演员”建筑的改造更新。泊寓作为万科专门面向城市青年的长租型公寓产品,也开始越来越多的出现在北京的新老城区。西直门泊寓项目临近西直门地铁站,位于北京西北二环以北,学院路以东的老街区内,是一栋建于80年代的十层老房子。前身是一座快捷酒店和洗浴中心,很久以前还曾是周边小有名气的“同一首歌”KTV。主体是由南侧主楼和西侧配楼组成的L型建筑和一栋三层东配楼。
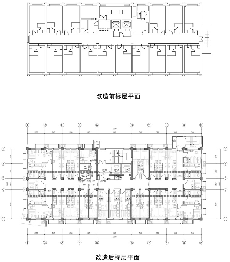
项目南侧是一个两岔路口,自然形成三角形的开放场地比街道高1米, 原本作为停车使用。改造后将三角形场地作为面向街道的小广场,围绕广场设置咖啡及小商店外摆,并结合景观设计用台阶和绿化代替原本的矮墙和坡道,形成一处老街区里难得的城市开放空间。泊寓的主入口位于广场远离街角相对安静的一端;L型主楼背后是一个小的露天内院,包含花园,露天影院,小球场,是公寓租客平日活动交流的主要室外空间。此次改造,建筑师对每层平面进行了不同的调整。西直门泊寓包含300余间公寓,从最小的8.5平米的迷你公寓至26.8平米的小套房。
在标准层通过增加东西侧山墙面的采光,呈现了更积极的城市界面,同时每层的有效采光面增加了50%,这使得全部户型不仅满足了年轻租户的基本的居住需求,也最大化地挖掘了小尺度户型的可能性,在有限面积内提供给年轻租户独立自由的空间。在建筑的首层,租客回家会先经过街角小广场上的咖啡厅和商业,然后沿着色彩明亮的吊顶骑楼步入镜面雨棚下面的泊寓入口。泊寓客厅丰富的共享功能提供给不同的租户多样性的选择:公共厨房,共享客厅,小剧场放映室,可供聚会用的餐厅和共享后花园庭院等,提供给租户们社交驻足的场所。

北京西直门泊寓外部实景图

北京西直门泊寓外部实景图

北京西直门泊寓外部实景图

北京西直门泊寓外部实景图

北京西直门泊寓外部实景图

北京西直门泊寓外部实景图

北京西直门泊寓外部实景图

北京西直门泊寓外部实景图

北京西直门泊寓外部实景图

北京西直门泊寓外部实景图

北京西直门泊寓外部实景图

北京西直门泊寓外部实景图

北京西直门泊寓外部实景图

北京西直门泊寓外部实景图

北京西直门泊寓外部夜景实景图

北京西直门泊寓外部夜景实景图

北京西直门泊寓外部夜景实景图

北京西直门泊寓外部夜景实景图

北京西直门泊寓内部实景图

北京西直门泊寓内部实景图

北京西直门泊寓内部实景图

北京西直门泊寓内部实景图

北京西直门泊寓内部实景图

北京西直门泊寓改造平面图

北京西直门泊寓平面图

北京西直门泊寓立面图

北京西直门泊寓立面图